Продажа квартир улица Архитектора Власова
  в 

Портал жилой недвижимости «Акула» поможет вам купить квартиру улица Архитектора Власова в Москве. На нашем сайте представлены объявления от собственников и риелторов с проверенными данными и контактами. Вы сможете выбрать лучший вариант по цене и планировке. Мы нашли для вас 15 актуальных предложений на сегодня.

15 предложения

Сортировать:
64 м² , 3-комнатную квартиру 26 апреля 2026
31 490 000 ₽

491 264 ₽ за м²

64 м² этаж 3

Продается 3-комнатная квартира в ЖК ЭВЕР (2 очередь, корпус 5). Дом сдан, ключи получены. Квартира расположена на комфортном 3 этаже. Функциональная Евро-трешка с удобной планировкой и грамотным распределением метража по комнатам. Квартиры с аналогичными планировочными...

163 м² , 4-комнатную квартиру 5 декабря 2025
89 500 000 ₽

550 431 ₽ за м²

163 м² этаж 9

№156258 156258 Уникальная квартира с видом на три стороны света, расположенная на благоустроенном дворе, украшенном множеством видов цветов и растений. 4-комнатная квартира в жилом комплексе "Вавилово". Можно спланировать: кухню, гостиную, три...

113 м² , 2-комнатную квартиру 19 марта 2026
62 000 000 ₽

549 646 ₽ за м²

113 м² этаж 9

Арт. 90170364. Предлагается к продаже отличная квартира в Жилом комплексе бизнес класса жк "Вавилово". Высота потолка 3, 1 метр. Квартира с отделкой white box, свободной планировки. Проведены все черновые работы. Оштукатурены и ошпатлёваны стены, сделана вся электрика. Возможно...

753 м² , Многокомнатную квартиру 19 марта 2026
606 000 000 ₽

805 102 ₽ за м²

753 м² этаж 13

Арт. 78867044. Делимся. Предлагается к продаже просторная 10-ти комнатная квартира (Пентхаус) в Жилом комплексе бизнес класса жк "Вавилово", расположенная на 13 и 14 этажах . Отделка white-box, свободной планировки. Общая площадь 752, 7 кв.м. Функциональная планировка: прихожая, ведущая в...

163 м² , 3-комнатную квартиру 19 марта 2026
109 000 000 ₽

667 484 ₽ за м²

163 м² этаж 16

Арт. 87187477. Предлагается к продаже отличная квартира в Жилом комплексе бизнес класса жк "Вавилово". Высота потолка 3, 1 метр. Квартира с отделкой white box, свободной планировки. Проведены все черновые работы. Оштукатурены и ошпатлёваны стены, сделана вся электрика. Возможно...

184 м² , 4-комнатную квартиру 22 апреля 2026
75 000 000 ₽

408 720 ₽ за м²

184 м² этаж 3

Продается превосходная, просторная квартира в закрытом ЖК с изолированными комнатами и ремонтом. Без перепланировокОПИСАНИЕ КВАРТИРЫ Окна выходят на западную сторону на улицуСовмещенная кухня-гостиная с хорошим естественным освещениемПросторные...

85 м² , 4-комнатную квартиру 25 апреля 2026
43 900 000 ₽

517 079 ₽ за м²

85 м² этаж 23

Квартира с панорамным видом восходаЭто предложение — для тех, кто видит в «голых» стенах не недостаток, а абсолютную свободу.Описание квартиры4-х комнатная квартира 84, 9 кв.м., 56, 4 жилая площадь. Планировка, в которой нет бесполезных метров. Отделки нет. Просторная...

43 м² , 2-комнатную квартиру 23 апреля 2026
18 300 000 ₽

425 582 ₽ за м²

43 м² этаж 3

ОписаниеУютная двухкомнатная квартира на улице Архитектора Власова, д.11к4. Всего 4 минуты пешком до метро Профсоюзная!Квартира полностью готова для проживания!Высокоэффективный арендный бизнес! Рядом Воронцовский парк!О КВАРТИРЕПлощадь квартиры - 43 кв. мКомнаты - 18 и 10, 8...

46 м² , 2-комнатную квартиру 18 апреля 2026
24 500 000 ₽

531 454 ₽ за м²

46 м² этаж 12

Звоните, подробное видео по запросу. Один взрослый собственник. Собственность получена! Залогов нет. Обременений нет. Полная стоимость в ДКП. Ключи на руках, оперативный показ. Продается евро двух-комнатная квартира, состоящая из спальни и просторной кухни гостиной.

102 м² , 2-комнатную квартиру 28 апреля 2026
44 000 000 ₽

432 646 ₽ за м²

102 м² этаж 25

Видовая квартира 101, 7 м² с дизайнерским ремонтом на 25 этаже в доме бизнес-класса Москва, ул. Архитектора Власова, дом 8 Площадь: 101, 7 м² Этаж: 25 из 28 Просторная квартира в доме бизнес-класса на юго-западе Москвы. Высокий этаж, панорамные виды на город, МГУ и Москва-Сити,...

122 м² , 4-комнатную квартиру 17 декабря 2025
46 000 000 ₽

377 050 ₽ за м²

122 м² этаж 2

№109751 Вашему вниманию предлагается тихая 4-комнатная квартира с видом на две стороны света и благоустроенным двором, украшенным множеством цветов и растений, в жилом комплексе "Вавилово". Можно спланировать кухню-гостиную, три спальни и два...

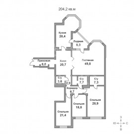
204 м² , 4-комнатную квартиру 15 июля 2025
101 000 000 ₽

496 315 ₽ за м²

204 м² этаж 4

№156281 РОСКОШНАЯ КВАРТИРА в лучшей и самой обжитой секции Жилого комплекса Вавилово!! Можно спланировать: кухню-гостиную, 3 спальни, 3 с/у, 4 гардеробных комнаты, 4 лоджии. Квартира с отделкой white box, обустроена радиаторами Zehender (Швейцария), окна из...

154 м² , 4-комнатную квартиру 12 декабря 2025
57 700 000 ₽

375 407 ₽ за м²

154 м² этаж 2

№156217 3-комнатная квартира в Жилом комплексе "Вавилово" Можно спланировать: кухню, гостиную, две спальни, два с/у. Квартира свободной планировки, с отделкой white box.

113 м² , 3-комнатную квартиру 4 декабря 2025
62 000 000 ₽

549 646 ₽ за м²

113 м² этаж 9

№156226 3-комнатная квартира в ЖК "Вавилово" Квартира свободной планировки с отделкой white box. Можно спланировать: кухню-гостиную, две спальни, два санузла, три лоджии.

106 м² , 2-комнатную квартиру 4 декабря 2025
37 000 000 ₽

349 717 ₽ за м²

106 м² этаж 1

№156289 2-комнатная квартира в Жилом комплексе "Вавилово" Можно спланировать: кухня-столовая, спальня, гардеробная комната, два с/у. Квартира свободной планировки, с отделкой white box.