Продажа 3х-комнатной квартиры
Москва, САО, р-н Головинский, ш Ленинградское, 9к3
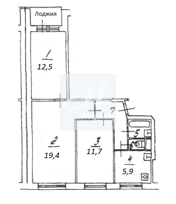
- 58 м²
- Площадь
- 43.60 м²
- Жилая площадь
- 6.00 м²
- Площадь кухни
- 1/9
- Этаж
16 200 000 ₽
278 830 ₽ за м²
ID объявления 12307631
Поделиться
Добавить в избранное
Просторная трёхкомнатная квартира на 1 этаже с лоджией и зелёным двором у метро. Уникальный шанс купить светлое жилье с отличной транспортной доступностью и инфраструктурой!Описание квартиры— Общее состояние, планировка:Просторная трёхкомнатная квартира на первом этаже с лоджией. Старый ремонт — идеальная возможность сделать современный ремонт под свой вкус без переплаты. Просторный коридор, смежно-изолированные комнаты.Комнаты 19, 4 м², 12, 5 м², 11, 7 м²Раздельный санузелПросторный коридорЛоджия (редкость для первого этажа)— Свет и вид:Окна выходят в зелёный, тихий двор. Квартира светлая, защищена от уличного шума.— Безопасность:Металлическая входная дверь.Дом и двор— Дом, входная группа:9-этажный панельный дом в Войковском районе. Квартира на 1 этаже.— Двор, парковка:Тихий, зелёный двор с детской и спортивной площадками. Огороженная территория со шлагбаумом. Открытая парковка для жильцов за шлагбаумом.— Расположение:Квартира находится у парка «Покровское-Стрешнево».Транспортная доступностьВсего 3 минуты пешком до станции метро «Войковская».До МЦД «Стрешнево» — 5 минут пешком.— Близость к магистралям:Удобный и быстрый выезд на Ленинградское и Волоколамское шоссе.Инфраструктура рядом— Зелёные зоны, парки:Рядом парк «Покровское-Стрешнево» — идеальное место для прогулок и отдыха.— Общая инфраструктура:Район отличается развитой и удобной инфраструктурой: магазины, кафе, школы, детские сады, поликлиники — всё в шаговой доступности.Условия продажи— Собственники:Один взрослый собственник. В квартире никто не прописан.— Отсутствие обременений:Квартира без долгов и без обременений. Чистая юридическая история.— Статус продажи:Свободная продажа. Все документы готовы, возможен быстрый выход на сделку.— Финансирование:Подходит для ипотеки.Работать с нами выгодно и надёжно:Покупателю выдаётся Правовой сертификат, гарантирующий юридическую чистоту объекта.Возможна ипотека с особыми условиями от банков-партнёров.Бонусы по партнёрским программам от известных брендов.
Дата обновления: 13 декабря 2025