Продажа 3х-комнатной квартиры
Москва, ЗАО, р-н Кунцево, ул Ивана Франко, 22к1
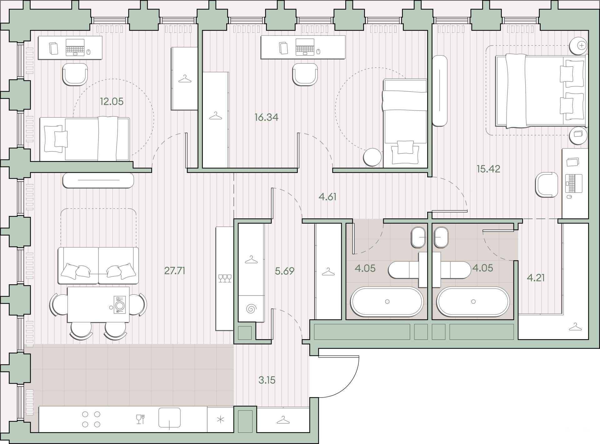
- 97 м²
- Площадь
- 43.81 м²
- Жилая площадь
- 27.71 м²
- Площадь кухни
- 33/44
- Этаж
48 318 976 ₽
496 700 ₽ за м²
ID объявления 12132917
Поделиться
Добавить в избранное
Продается 3-комн. квартира, площадью 97.28 м2 в монолитной новостройке в 12 мин. пешком от м. Кунцевская, район города - Кунцево. Возможен вариант покупки с использованием ипотечных средств, есть рассрочка.
Жилая площадь 43.81 м2, кухня 27.71 м2, предчистовая отделка, комнаты изолированные.
Квартира располагается на 33 этаже 44-этажного дома в ЖК Среда на Кутузовском.
Застройщик - Среда, сдача дома - IV квартал 2027 года, высота потолков 2.92 м.
Дом оборудован пассажирским лифтом.
Отдельная многоуровневая парковка. Инфраструктура: детские площадки, спортивные площадки.
Комплекс предназначен для людей, которые ставят в приоритет свой комфорт, умеют прислушиваться к себе и понимают, что нужно для внутренней гармонии. Это проект для тех, кто ценит свое время и использует его правильно. Для тех, кто умеет радоваться тому, что есть. «Среда на Кутузовском» - личное место силы и гармонии в двух шагах от центра города.
Жилой комплекс строится в престижном и зеленом Кунцево. Здесь расположены различные торговые центры, престижные учебные заведения (МГУ, РЭУ им. Плеханова, Финансовый университет при Правительстве РФ, РУДН) медицинские клиники.
Представлены широкие возможности для поклонников разных видов спорта: от бега в ближайших парках и велозаездов до гребли, баскетбола, футбола, хоккея, фигурного катания и катания на лыжах. На каждый день подойдет World Class с открытым бассейном - он находится всего в 1 минуте от дома.
Выбор мест для прогулок также разнообразен: Суворовский парк, лесной массив Крылатских холмов, Москворецкий парк и природный заказник «Долина реки Сетунь».
10 мин пешком:
-м. Кунцевская
-вся необходимая инфраструктура
5-15 мин на авто:
-Северо-Западная хорда
-Кутузовский проспект
-Рублевское шоссе
-МКАД
-Можайское шоссе
Проект сочетает в себе ритмичность и динамичность, благодаря своей архитектуре, при он этом окружен зеленью и парками. «Среда на Кутузовском» погружает в активный и разнообразный образ жизни, дает вариативные возможности досуга и вдохновляет на новые свершения.
-Зоны отдыха у воды
-Принцип многослойности в архитектуре
-Зона барбекю
-Пентхаусы
-Умный паркинг
-Гайдбук по управлению умным домом
-Окна в пол на всех этажах
СПЕЦ. ПРЕДЛОЖЕНИЕ:
Ипотека 5% на 5 лет!
Специальные условия от банка МКБ в проекте «Среда на Кутузовском»: льготная ставка 5% действует первые 5 лет кредитования.
Первый взнос - от 50%
Сумма кредита - до 70 млн рублей
После окончания льготного периода, у вас будет возможность рефинансировать ипотеку на более выгодных условиях или погасить её досрочно, продав старую квартиру.
Подробности программы уточняйте у персонального консультанта по телефону.
Аккредитованные банки: Совкомбанк, Альфа-Банк , Банк ДОМ. РФ, Банк ВТБ , Т-Банк , МКБ
Позвоните и узнайте условия покупки прямо сейчас!
Дата обновления: 15 октября 2025