Продажа 2х-комнатной квартиры
Москва, ЦАО, р-н Пресненский, проезд Шмитовский, вл40
- 67 м²
- Площадь
- 22/36
- Этаж
32 568 988 ₽
487 560 ₽ за м²
ID объявления 12196270
Поделиться
Добавить в избранное
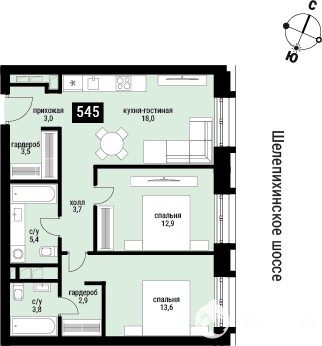
Двухкомнатная квартира в ЖК "Шелепиха" на 22 этаже. Квартира без отделки, после оформления собственности можно делать ремонт. Общая площадь: 66.8 кв.м. Высота потолков 3 м.
Квартира находится в корпусе 1. Дом монолитный, двухподъездный, высотой 36 этажей. На этаже 8 квартир. В подъезде 2 пассажирских и 2 грузовых лифта. Окончание строительства - 2 квартал 2026 года. Оформление сделки по договору долевого участия.
В шаговой доступности от дома расположены станции метро (расстояние по прямой): «Шелепиха» (200 м), «Тестовская» (700 м), «Международная» (1.0 км), «Москва-Сити» (1.0 км), «Деловой центр» (1.3 км).
Жилой комплекс «Шелепиха» – уникальная возможность купить квартиру в ЦАО с видом на «Москва-Сити», исторический центр и набережную. Просторные квартиры и студии созданы для людей, живущих в стремительном ритме, продиктованном мегаполисом. Первая очередь строительства - это две 38-этажных башни с подземным паркингом в запоминающемся архитектурном решении от известного бюро Speech. В ЖК «Шелепиха» представлено более 20 планировок квартир площадью от 23, 7 до 162, 1 кв. м., комплекс имеет идеальную транспортную доступность: 1 минута пешком до метро и МДК «Шелепиха», удобные выезды на ТТК и Звенигородское шоссе. Увеличенная площадь остекления, система «Умный дом», трехтрубная VRF-система кондиционирования, развитая инфраструктура с закрытым внутренним двором на стилобатной части комплекса, где разместятся детские и спортивные площадки, зоны для уединенного отдыха, вместительный подземный паркинг со станциями зарядки электромобилей, кладовые комнаты, а также шаговая доступность до «Москва-Сити» не оставят равнодушными людей, стремящихся жить в самом сердце деловой активности столицы. (AQID02464078)
Дата обновления: 10 ноября 2025