Продажа 2х-комнатной квартиры
Москва, СВАО, р-н Алексеевский, пр-кт Мира, 95
- 73 м²
- Площадь
- 62.00 м²
- Жилая площадь
- 6.00 м²
- Площадь кухни
- 10/15
- Этаж
36 999 000 ₽
504 074 ₽ за м²
ID объявления 12286909
Поделиться
Добавить в избранное
АПАРТАМЕНТЫ В НОВОМ ЖК HILLS 8 C РЕМОНТОМ, МЕБЕЛЬЮ И ТЕХНИКОЙ!
ДВЕ ОТДЕЛЬНЫЕ КОМНАТЫ-СТУДИИ, ГОТОВЫЕ ДЛЯ ЖИЗНИ ИЛИ СДАЧИ!
ДО МЕТРО АЛЕКСЕЕВСКАЯ 2МИНУТЫ ПЕШКОМ!
Просторные двухкомнатные апартаменты с дизайнерским ремонтом в новом ЖК премиального класса HILLS8 в 2 минутах от метро Алексеевская. Продуманная планировка и современным дизайнерским ремонтом.
Идеальный вариант для проживания или сдачи в аренду!
Описание квартиры
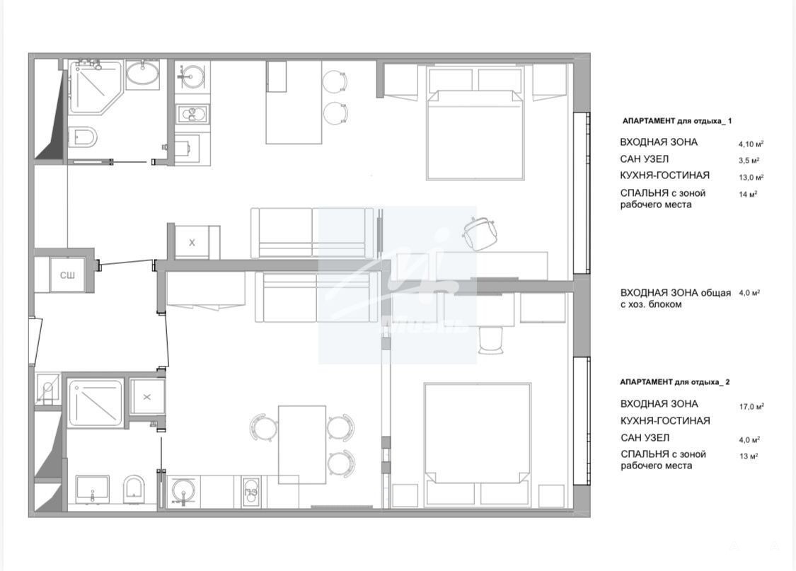
светлая квартира состоит из двух частей общей площадью 73, 4 м² и высокими потолками – 3 м и панорамным остеклением
•
каждая из двух частей квартиры - это полностью оборудованная студия со своей кухней, санузлом, зоной гостиной и спальней.
•
один вход в квартиру и в коридоре находится шкаф для верхней одежды, стиральная и сушильная машинки. Далее в каждую часть квартиры есть отдельная дверь.
•
дизайнерский ремонт с использованием качественных материалов и современного
оборудования, полностью готовая к проживанию, укомплектованная мебелью и техникой! Никто не жил!
•
функциональная планировка каждой части: кухня гостиная, спальня с большим шкафом.
•
установлены системы кондиционирования, двери скрытого монтажа, ламинат высокой степени износа
•
панорамные окна выходят во двор, что дарит тишину и уединение
•
апартаменты можно использовать под аренду как две отдельные студии или для жизни, как двухкомнатную квартиру
Дом и двор
ЖК бизнес-класса HILLS8 — это современное пространство для жизни с уникальной архитектурой и
атмосферой уюта. Двухуровневые входные группы с дизайнерским оформлением. В ЖК предусмотрены 2 этажа помещений для офисов и стрит-ритейла с отдельными входами. Внутренняя инфраструктура комплекса включает монобрендовый ресторан, салон красоты, барбер-шоп, фитнес-клуб, а также торговую галерею.
монолитный дом 2021 года
•
подземный паркинг, система умный дом, консьерж сервис, видеонаблюдение 24/7
•
сформированное сообщество жильцов и дружественная атмосфера, гарантия
безопасности и спокойствия
Транспортная доступность
300 м до метро «Алексеевская»
•
до Проспекта Мира — 100 м, ТТК — 1, 75 км, 10 км до МКАД
Инфраструктура рядом
в пешей доступности ТЦ, пункты выдачи заказов популярных маркетплейсов, детские сады, школы,
центр развития детей, фитнес-центр с бассейном,
салоны красоты, кафе и рестораны
•
пешком до парка Сокольники 20 минут
•
до главного Ботанического сада РАН 2, 4 км
•
Рядом расположены частные и муниципальные детские сады и школы, рестораны, кафе, салоны красоты и здоровья, фитнес зал.
•
Торгово-развлекательный центр «Алексеевский» в 2 минутах пешком
Условия продажи
свободная продажа, никто не зарегистрирован
•
один взрослый собственник, владение менее 3 лет
•
квартира без обременений, продажа по договору ДКП
Работать с МИЭЛЬ выгодно и надёжно
•
покупателю выдаётся Правовой сертификат, гарантирующий юридическую чистоту
объекта
•
возможна ипотека с особыми условиями для клиентов МИЭЛЬ от банков-партнёров,
работаем с любыми источниками финансирования (материнский капитал, военный
сертификат и т.д.)
Дата обновления: 5 декабря 2025