Продажа 2х-комнатной квартиры
Москва, ЮВАО, р-н Марьино, ул Иловайская, 2
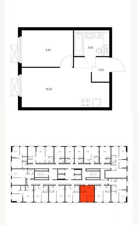
- 32 м²
- Площадь
- 10 м²
- Жилая площадь
- 16 м²
- Площадь кухни
- 25/33
- Этаж
Это объявление снято с публикации.
Если это ваше объявление, восстановите его в личном кабинете или подайте новое.
В ином случае, вы можете перейти на главную или поискать другие предложения.
Успей купить светлую квартиру в современном жилом комплексе комфорт-класса на юго-востоке Москвы. Продается уютная 2-комнатная квартира с кухней-гостиной в ЖК "Люблинский парк" в новом доме с подземным паркингом и закрытым двором. Квартира расположена на высоком 25-м этаже с потрясающим видом из окна на город! Шикарная планировка квартиры с кухней-гостиной и изолированной спальней. Документы готовы к сделке. Один взрослый собственник, полная стоимость в договоре. Документы готовы к сделке, а квартира к заселению.
Благоустроенные дворы без машин, детские игровые и спортивные площадки. В пешей доступности расположены торговые центры, магазины. На территории ЖК построена школа, детский сад и поликлиника!
Покупателю:
✅Выгодная ипотечная ставка от 18% на специальных условиях
✅Данная сделка застрахована САО-Ресо Гарантия
-бесплатное сопровождение сделки;
-квалифицированная помощь в получение ипотеки в ведущих банках, срок одобрения от 1 до 3 дней;
-специальные скидки;
-возможность подачи заявок одновременно в несколько банков, высокая степень одобрения;
-индивидуальный подбор ипотеки с наименьшей ставкой с учётом госпрограмм, акций! Номер в базе: 12670
Дата обновления: 29 января 2026