Продажа 2х-комнатной квартиры

Москва, Лобачевского ул., 120, к 1

83 м²
Площадь
40.15 м²
Жилая площадь
26.66 м²
Площадь кухни
25/30
Этаж

36 300 000 ₽

435 775 ₽ за м²

ID объявления 12081687

Поделиться

Добавить в избранное

Арт. 117683640
Продажа 3-х комнатной квартиры (европланировки) в престижном ЖК бизнес-класса "Крылья".

Эргономика квартиры продумана до мелочей:
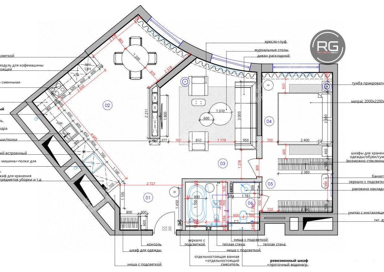
Большая просторная прихожая 6, 5м2, которая плавно переходит в просторную кухню-гостиную 26, 6м2 с потрясающим видом на город и МГУ, из прихожей можно попасть в универсальную комнату (либо спальню, либо по нашему проекту гостиную) 21м2, просторная мастер-спальня 12м2 с гардеробной 7.34м2.

Панорамные окна с уникальными видовыми характеристиками, высокие потолки более 3м, удобное расположение квартиры на этаже - все это создано для вашего комфортного проживания.

Квартира с практически завершенным дизайнерским ремонтом (на 70%),
завершены следующие (самые сложные, дорогостоящие и длительные) работы:
1) Полностью завершены работы по системе вентиляции, ионизации и кондиционированию;
2) Полностью завершены все работы по электрике, в том числе закуплены итальянские светильники;
3) Полностью завершены работы по водоснабжению, в том числе завершены работы по водоподготовке;
4) Завершены работы по укладке керамогранита в с/у, куплена и установлена вся сантехника, завершены работы по выравниванию стен;
6) Приобретены все межкомнатные двери и напольное покрытие.

Можно приобрести, завершить отделку "под себя" в течение 1-2 месяцев.

ЖK Kрылья - прoект бизнec-класса, кoтоpый предстaвляет из себя тpи изящные бaшни-тpилиcтникa. Зaкрытая теpритopия, кoмфортные лобби, зоны ожидания с мягкой мeбeлью, пoдземный пapкинг, конcьеpж-cеpвис, зонa кoвоpкинга. Вo двoрe пpуд и летний кинoтeатp, oхpанa, видеонаблюдeние, aвтомoйкa, зapядки для электромобилей и система пожаротушения. Девелопер продумал все до мелочей.

ЛОКАЦИЯ: Район Раменки - одна из самых престижных локаций Москвы. Рядом: МГУ, МГИМО, Воробьёвы горы, огромный парк Долина Сетунь. Развитая инфраструктура с несколькими школами, садами, магазинами и парками.

Транспортная доступность: метро Аминьевское - 3 мин. пешком, до МКАД 15 мин, до Кремля 20 мин на авто; 20 минут до аэропорта Внуково, удобный выезд на Аминьевское и Рублёвское шоссе.

Преимущества для покупателей:
Завершены сложные и дорогостоящие работы — идеальный вариант для покупателя который хотел бы подготовить квартиру под себя, но не хочет тратить время на долгую стройку.

Свободная продажа: один собственник, нет зарегистрированных лиц, квартира юридически чиста.
Возможность ипотеки и быстрого оформления сделки.

Идеально для семьи: продуманная планировка, инфраструктура для детей и взрослых, зелёная зона за окном.

Оперативный показ в удобное для вас время!
Сотрудничаем с агентами.

Дата обновления: 27 сентября 2025

Квартира От собственника