Продажа 2х-комнатной квартиры
Москва, ЮВАО, р-н Люблино, ул Цимлянская, 3к1
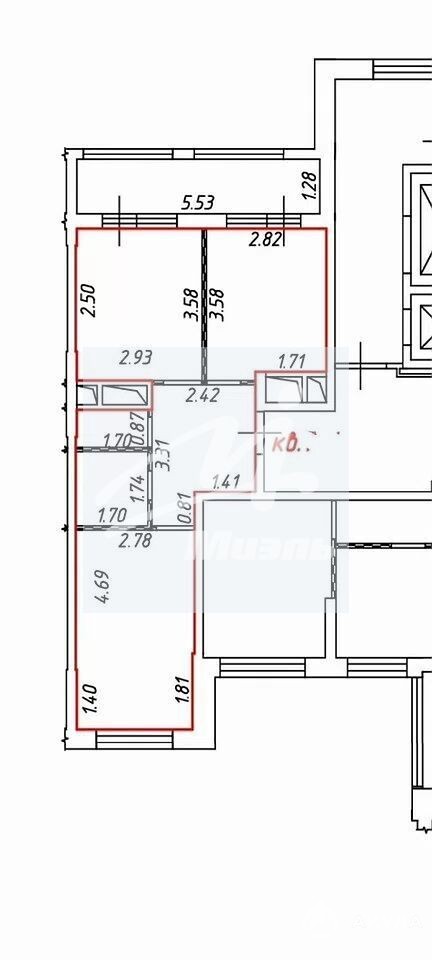
- 52 м²
- Площадь
- 35.00 м²
- Жилая площадь
- 10.00 м²
- Площадь кухни
- 17/17
- Этаж
24 000 000 ₽
461 539 ₽ за м²
ID объявления 12286715
Поделиться
Добавить в избранное
Ваша новая квартира ждёт вас! Это идеальное место для жизни вашей семьи, где комфорт и уют сочетаются с современным дизайном и удобным расположением.
Квартира расположена на 17 этаже 17-этажного монолитного дома, построенного в 2019 году. Из окон открывается вид на улицу и во двор. Общая площадь квартиры составляет 52 кв. м, жилая — 35 кв. м, площадь кухни — 10 кв. м. Две комнаты изолированы, их площадь — 17 и 18 кв. м. Высота потолков — 3 метра, что создаёт дополнительное ощущение простора.
Дизайнерский ремонт позволит вам сразу заселиться и наслаждаться новым домом. Угловая планировка квартиры обеспечивает хорошую освещённость и вентиляцию. Есть лоджия, где можно разместить зону отдыха или маленький сад. Мебель и бытовая техника входят в стоимость квартиры и остаются новому собственнику.
Расположение дома порадует тех, кто ценит комфорт и удобство. Близость к основным транспортным магистралям позволит быстро добраться до любой точки города. В радиусе 1000 метров от дома находятся магазины, школы, детские сады, аптеки и спортивные клубы. Рядом есть зелёные зоны, где можно отдохнуть и провести время на свежем воздухе.
Эта квартира — отличное решение для семьи, которая ценит комфорт, безопасность и уют. Не упустите возможность стать владельцем этого прекрасного жилья!
Преимущества покупки с компанией МИЭЛЬ: покупателю выдаётся Правовой сертификат, гарантирующий юридическую чистоту объекта; возможна ипотека с особыми условиями от банков-партнёров; бонусы о партнёрским программам МИЭЛЬ на товары и услуги известных брендов .
Позвоните нам прямо сейчас, чтобы узнать больше и записаться на просмотр.
Дата обновления: 5 декабря 2025