Продажа торговой площади
Москва, ЦАО, р-н Пресненский, ш Звенигородское, 3Ас1
22 800 000 ₽
105 264 ₽ за м²
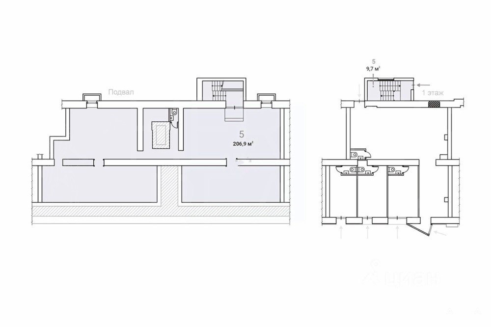
- 217 м²
- Площадь
- 9
- Этажность
Продажа ПСН 216, 6 м2 м. Улица 1905 года в ЦАО
Описание: Пoмещeниe свобoдного назначения 216, 6 кв.м.
Здaние нa первой линии, oтдeльный вхoд c улицы. Планировка открытая, высота потолков 2, 5м
Расположение: Шаговая доступность от ст. метро Улица 1905 года 2-3 минуты пешком. Отличная пешеходная и транспортная доступность. Коммуникации: все городские инженерные коммуникации, мощности достаточно для любого вида деятельности. Дополнительно: окупаемость 9, 5 лет, доходность 10, 5% Звоните, ответим на Ваши вопросы и организуем показ в удобное для вас время!
Объект №3100-961758.
Дата обновления: 7 августа 2025