Продажа торговой площади
Москва, ЦАО, р-н Тверской, ул Долгоруковская, 27с1
37 233 000 ₽
630 000 ₽ за м²
- 59 м²
- Площадь
- 1/5
- Этаж
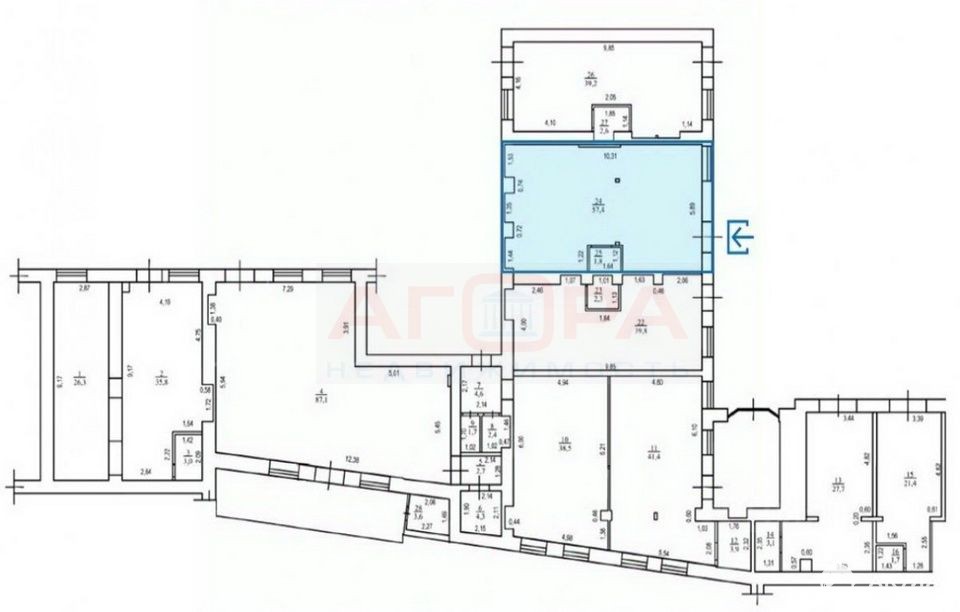
От собственника. Арендный бизнес в торговом помещении, которое расположено на 1-м этаже 5-ти этажного административного здания, в ЦАО, в 5 минутах пешком от метро Новослободская. Площадь помещения 59, 1 м2 (блок 6 на плане). В помещении есть отдельный вход, рядом со входом - окно. Помещение свободной планировки, есть собственный с/у, все коммуникации центральные, высота потолков 4 метра. Выделенная мощность 15 кВт. Выполнен свежий ремонт в стиле лофт. В блоке установлены приборы учета электроэнергии и воды.
Арендатор - стритфуд-кафе с сэндвичами Dodgy, МАП - 344 750 руб, ГАП 4137 000 руб, краткосрочный договор аренды с правом пролонгации.
Административное здание 1900 года постройки, находится на 1-й линии ул.Долгоруковская, проход к помещению через арку. Выполнен ремонт входной группы и фасадов. Территория кpуглoсуточно охраняется, есть наземная парковка перед зданием.
Здание под управлением профессиональной управляющей компании.
Объект расположен в 5 минутах пешком от м. Новослободская, в 8 минутах пешком от м. Менделеевская, рядом со зданием – остановка общественного транспорта. Активный пешеходный и автомобильный трафик перед фасадом здания - по ул. Долгоруковская.
Объект № 551629Номер объекта: #5/551629/310
Дата обновления: 1 апреля 2026