Продажа торговой площади
Москва, ЦАО, р-н Басманный, ул Бауманская, 33/2с3
46 200 000 ₽
2 655 173 ₽ за м²
- 17 м²
- Площадь
- 1/3
- Этаж
Продажа торгового помещения
На выходе из метро, станция Бауманская
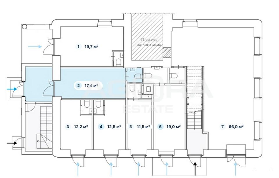
Площадь - 17, 4 м2. Полностью на 1-м этаже (на плане - блок 2). Отдельный вход с улицы. Планировка - открытая (сетка колонн). Состояние - под чистовую отделку. Все городские коммуникации. Место для размещения вывески на фасаде.
Помещение имеет отличную визуализацию и высокий торговый потенциал. Потенциальный МАП - 350 000.00 рублей.
Район с высокой деловой активностью, плотный пешеходный трафик к метро.Объект № 551563Номер объекта: #5/551563/310
Дата обновления: 12 февраля 2026