Продажа помещения свободного назначения

84 000 000 ₽

1 153 847 ₽ за м²

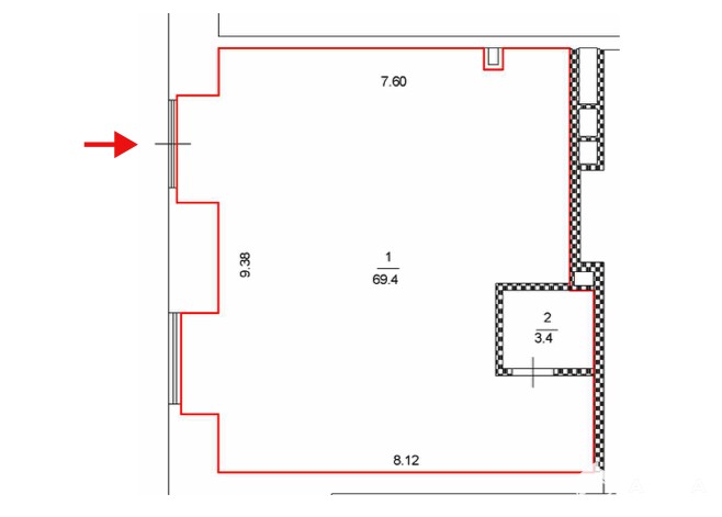
73 м²
Площадь
1/9
Этаж

Поделиться

Добавить в избранное

Арт. 93061579. ГАБ в ЖК "Cloud Nine".

Продаётся ГАБ с арендатором (Красное и белое) площадью 72, 8 м2 на 1 этаже клубного дома пермиум класса Cloud Nine, расположенного в 900 метрах от Кремля.

Высокий пешеходный и автомобильный трафик, благодаря туристическим и культурным объектам, находящимся в непосредственной близости.

МАП 360 000 руб.



Преимущества помещения:

— надежный сетевой арендатор (договор на 10 лет)

— 1 этаж — максимальная видимость и доступность

— панорамное остекление (идеально для привлечения внимания)

— отдельный выход на оживленную улицу

— высокие потолки (5 метров)

Также в данном ЖК предлагается ГАБ 161 м2.

Участник AREA - Ассоциации Агентств Элитной Недвижимости

Дата обновления: 2 апреля 2026