Продажа помещения свободного назначения
Москва, ЦАО, р-н Таганский, наб Котельническая, 1/15кБ
37 000 000 ₽
226 300 ₽ за м²
- 164 м²
- Площадь
- -1/32
- Этаж
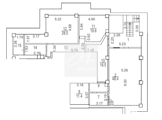
Продажа торгового помещения по адресу: Москва, р-н Таганский, Котельническая набережная, 1/15 корп Б.
- Общая площадь - 163, 5 м2.
- Электрическая мощность - 15 кВт.
- Высота потолка - 2, 9 м.
- Отдельный вход.
- Цокольный этаж.
- 2 мин. до остановки общественного транспорта.
- Проживают в 10 мин ходьбы - 11779 человек.
#ТП
Дата обновления: 6 декабря 2025