Продажа помещения свободного назначения
Москва, ЦАО, р-н Басманный, туп Хомутовский, 5-7с13
265 000 000 ₽
248 593 ₽ за м²
- 1 066 м²
- Площадь
- 1/2
- Этаж
Продается готовый арендный бизнес/отдельно стоящее здание по адресу: Москва, р-н Басанный, Хомутовский тупик, 5-7с13.
- Окупаемость - #12, 3 лет.
- Доходность - 8, 2 %/год
- Общий МАП (месячный арендный поток) - 1 800 000 руб/мес.
По расчётам МАП повысится в ближайшее время на 400 000 руб/мес. и составит - 2 200 000 руб/мес.
- Арендаторы:
1. «Гостиница у Красных Ворот»
МАП 24 % от объёма валовой выручка за 1 месяц- но не менее 1 400 000 руб. (НДС не облагается)
По расчётам планируемый МАП 1 800 000 руб./мес.
Индексация с 3 года аренды 5%
2. «Студия вокала»
МАП - 400 000 руб/мес.
Индекcация 5%.
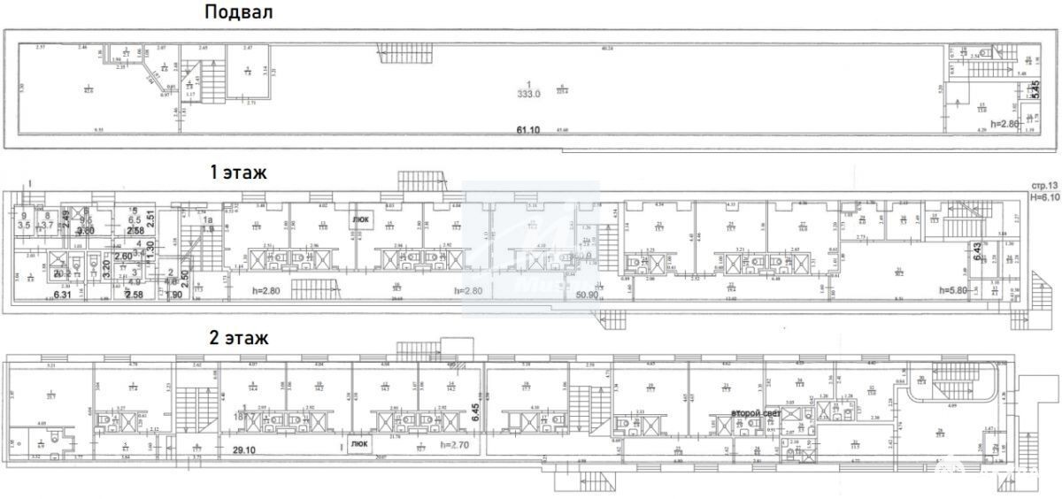
- Общая площадь - 1066 м2:
1 этаж - 358, 2 м2;
2 этаж - 362, 4 м2;
Подвал - 345, 4 м2.
- Площадь ЗУ - 462 м2.
- Земельный участок в аренде.
- Высота потолков от 2, 7 до 2, 8 м.
- Электрическая мощность -130 кВт.
- Отдельно стоящее 2-х этажное здание с подвалом в самом центре Москвы.
- Расположено в 5 минутах ходьбы от станции метро «Красные ворота».
- Центр Москвы популярен для туристов со всего мира. Что даёт большое преимущество для ведения
гостиничного бизнеса в данном районе.
- Басманный район славится своей исторической архитектурой и стабильными спрос на коммерческую
недвижимость. Интерес к такой недвижимости возрастает как у инвесторов, так и у арендаторов.
- Активно развиваются культурные и развлекательные объекты. Наличие театров, галерей, ресторанов и
boutiques способствует притоку туристов и создает активную социальную жизнь, что положительно
сказывается на уровне жизни и коммерческой активности района. Это также открывает перспективы
для инвестиций в сферу услуг, общественного питания и торговли.
#ГАБ #ОСЗ
Дата обновления: 6 декабря 2025