Продажа помещения свободного назначения
Москва, ЦАО, р-н Пресненский, ул Большая Никитская, 12с1
485 000 000 ₽
1 948 574 ₽ за м²
- 249 м²
- Площадь
- 1/6
- Этаж
Продажа коммерческой недвижимости по адресу: Москва, Большая Никитская 12/1.
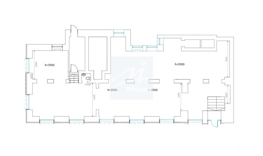
- Общая площадь - 248, 9 м2.
- Вход: отдельный с фасада.
- Высота потолков - 3, 1 м.
- Витрины по всему периметру помещения.
- Свободная планировка.
- Отделка - White Box.
- Возможность размещения вывесок на фасаде.
- Парковка: городская, в переулке.
- Помещение расположено в самой модной и востребованной локации города — на пересечении с Большой Никитской улицей в пешей доступности от Патриарших прудов.
- Рядом с помещением находятся рестораны, театры, деловые центры, гостиницы.
- Торговое помещение идеально подойдет под галерею или showroom.
Дата обновления: 30 декабря 2025