Продажа помещения свободного назначения
Москва, ЦАО, р-н Замоскворечье, ул Бахрушина, 36/14с3
970 000 000 ₽
1 864 310 ₽ за м²
- 520 м²
- Площадь
- 1/3
- Этаж
Продажа коммерческой недвижимости по адресу: Москва, Бахрушина, 36/14с3.
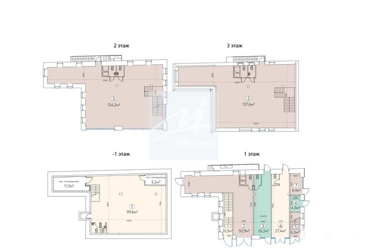
- Общая площадь - 520.3 м2.
- Торговых помещений - 7.
- Этажность: 1 подземный, 3 надземных.
- Высота потолков - 3 - 3, 5 м.
- Электрическая мощность - 380 кВт.
- Вентиляция и кондиционирование централизованное.
- Торговые помещения в отдельно стоящем здании на первой фасадной линии Садового кольца у станции метро «Павелецкая» напротив Павелецкого вокзала и ТРЦ «Павелецкая плаза».
- Рядом расположено 5 крупных бизнес-центра. Сверхинтенсивный пешеходный и автомобильный трафики.
Дата обновления: 6 декабря 2025