Продажа помещения свободного назначения

Москва, -, 10А

Саларьево, 4 мин

Румянцево, 14 мин

166 000 000 ₽

331 603 ₽ за м²

501 м²
Площадь
1/24
Этаж

Поделиться

Добавить в избранное

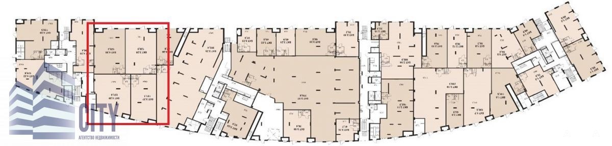
Продажа блока из 4 нежилых помещений в ЖК "1-й Саларьевский".
Общая площадь - 500, 6 м2.
ЖК "1-й Саларьевский" - это жилой квартал комфорт класса, находящийся в Новой Москве, всего в 2 км от МКАД и в 5 минутах пешком от метро Саларьево.
Проект будет реализован в 3 очереди:
Первая очередь -корпус 1, корпус 2, корпус 3.
Вторая очередь строительства - корпус 3, корпус 4, корпус 5, корпус 7, ДОУ+СОШ, надземный паркинг..
В помещения согласован сетевой продуктовый арендатор. Сразу после покупки можно подписать предварительный договор аренды.
Продажа по переуступке прав по ДДУ. Срок ввода в эксплуатацию 4 квартал 2026 года.
Аренда - оферта от Пятерочки: 1й год - 1 , 100 млн.р.
2й год - 1, 400 млн. р.
2й год - 1, 700 млн. р.
РТО - 5%.
Аренда-оферта от Дикси: 1й год - 1, 200 млн. р.
2й год - 1, 260 млн. р.
РТО - 5%.
Номер объекта: #5/550841/1515

Дата обновления: 13 марта 2026

Помещение с «Дикси»