Аренда помещения свободного назначения

489 000 ₽/мес

41 915 ₽ за м²/год

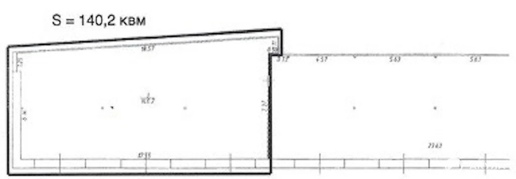
140 м²
Площадь
1
Этаж

Поделиться

Добавить в избранное

М. Шелепиха м.Тестовская 10 м.п. 2-я Магистральная улица, 16Ас4. Сдается в аренду ПСН 140, 2 кв.м под автосервис под 3 подъемника с прилегающим участком на 6 машино-мест. Закрытая, охраняемая территория Бизнес Центра. Есть дополнительные места для клиентов. Высокие потолки, 50 кВт электричества. Удобный выезд на ТТК, Звенигородское шоссе, Фили и Кутузовский! Стоимость 489 000 рублей. С НДС. Коммунальные платежи дополнительно. Возможно увеличение до 7 постов и 40 машино-мест. AFY-901103791

Дата обновления: 3 февраля 2026