Аренда помещения свободного назначения
Москва, ЮЗАО, р-н Обручевский, ул Обручева, 23к2с3
1 580 333 ₽/мес
43 100 ₽ за м²/год
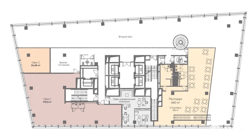
- 440 м²
- Площадь
- 2/2
- Этаж
Аренда ПСН 440 м2 м. Воронцовская в ЮАО
Описание: Сдается помещение под ресторан. Располагается на 1 и 2 этажа (2 уровня, доступ на второй этаж через площадь первого этажа). Имеется два отдельных входа и входы из здания. Площадь первого уровня 260 м2, площадь второго уровня 180 м2. Для резидентов бизнес-центра предусмотрены эксплуатируемая благоустроенная кровля и комфортные террасы.
Расположение: 10 минут м.Калужская.
Коммуникации: центральные.
Парковка: двухуровневый подземный паркинг на 88 мест
Дополнительно: коммунальные платежи оплачиваются отдельно
Звоните, ответим на Ваши вопросы и организуем показ в удобное для вас время!
Объект №3100-960798.
Дата обновления: 24 января 2026