Аренда офисного помещения
Москва, ЮЗАО, р-н Обручевский, ш Старокалужское, 62с1
217 000 ₽/мес
22 616 ₽ за м²/год
- 115 м²
- Площадь
- 4/4
- Этаж
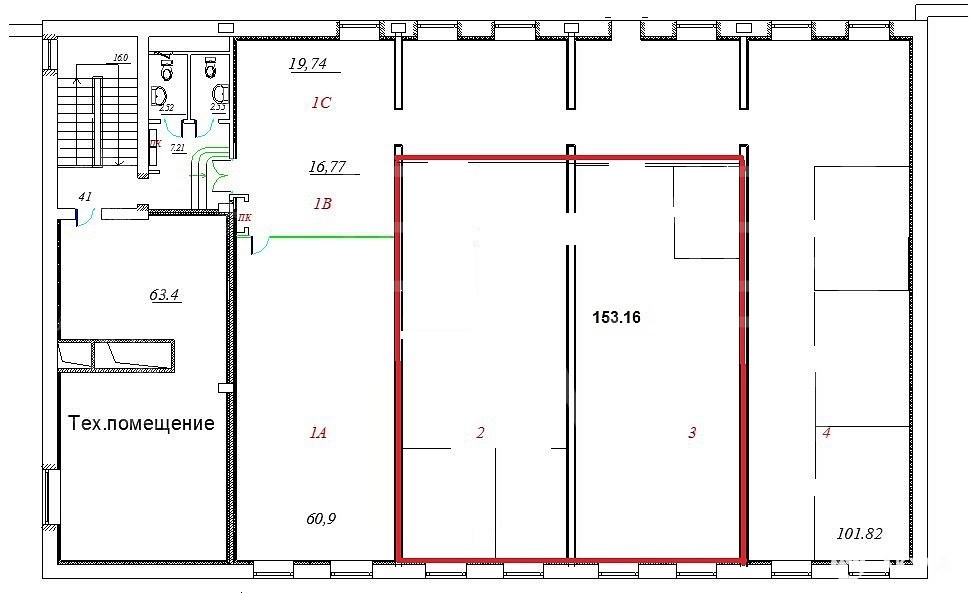
             АРЕНДА ОФИСА 153, 16 М² В БИЗНЕС-ЦЕНТРЕ КОМФОРТ И ВЫГОДА ДЛЯ ВАШЕГО БИЗНЕСА!  Пространство с продуманной инфраструктурой и выгодными условиями прямой аренды идеальный выбор для стабильного развития компании!  КЛЮЧЕВЫЕ ХАРАКТЕРИСТИКИ  Площадь/Этажность: Площадь 153, 16 м² на 4-м этаже Качественный ремонт Стеклопакеты ПВХ Сплит-системы кондиционирования  Локация: Пешая доступность от м. Воронцовская 2 минуты Близость к м. Калужская 5-8 минут Удобный транспортный доступ с основных магистралей  Инфраструктура: Коммуникации: современные инженерные системы Парковка: муниципальная и закрытая парковочные зоны Безопасность: пропускной режим с контролем доступа Питание: столовая, кофейные и снэковые аппараты  ПОЧЕМУ ЭТО ВЫГОДНО? 
 Развитая инфраструктура все необходимое для работы и комфорта сотрудников
 Удобная транспортная доступность экономия времени на логистику
 Гибкие опции возможность получения юридического адреса и различные варианты парковки  ВАШ БИЗНЕС В ЭТОМ ПРОСТРАНСТВЕ:  Офис для среднего бизнеса с потребностью в представительском пространстве
 Штаб-квартира компании с требованием к безопасности и комфорту сотрудников
 Пространство для IT-компании или креативного агентства
 Бизнес-центр для консультационных и профессиональных услуг  Напишите или позвоните для получения детальной информации о планировке
 Организуем просмотр помещения и ознакомим с условиями аренды #АрендаОфисаЮАО #БЦСтарокалужское #Офис115м #Воронцовская #БизнесПространство
аренда офиса в бизнес-центре Старокалужское 62, офисное помещение 115 м² у метро Воронцовская  Создайте оптимальные условия для работы вашей команды в пространстве с развитой инфраструктурой и выгодными условиями аренды! Объект №3100-979615.            
Дата обновления: 2 октября 2025