Аренда офисного помещения

161 300 ₽/мес

35 002 ₽ за м²/год

55 м²
Площадь
1/3
Этаж

Поделиться

Добавить в избранное

Александр. Вашему вниманию предлагается офисное помещение 55, 3 кв.м. в особняке в историческом центре Москвы. Особняк расположен на огороженной, охраняемой территории, со своим просторнымй внутренним двором.
Дорогая, качественная отделка, дорогая качественная мебель, домашний уют, качественный паркет на полу. Просторное фойе также с дорогой мебелью.
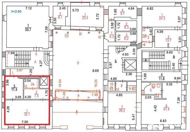
Офисное помещение расположено на 1-ом этаже и состоит из двух комнат (32 и 11, 5 кв. м) и двух подсобных помещений (12 кв. м). Также есть места общего пользования с креслами, диванами. Везде домашний уют и домашняя атмосфера. Смотрите схему: границы, сдаваемого помещения, выделены красным цветом.
Рассмотрим компании без высокой посещяемости.
Юр. адрес предоставляется.
Общая площадь 55, 3 кв.м. 161 300 руб в месяц за все помещение. НДС включен в стоимость. Коммунальные услуги и электричество оплачиваются отдельно.
Стоимость одного машино-места 25 000 в месяц.

Дата обновления: 25 апреля 2026