Аренда офисного помещения
Москва, ЦАО, р-н Таганский, ул Марксистская, 16
4 355 400 ₽/мес
51 240 ₽ за м²/год
- 1 020 м²
- Площадь
- 5
- Этаж
- a
- Класс
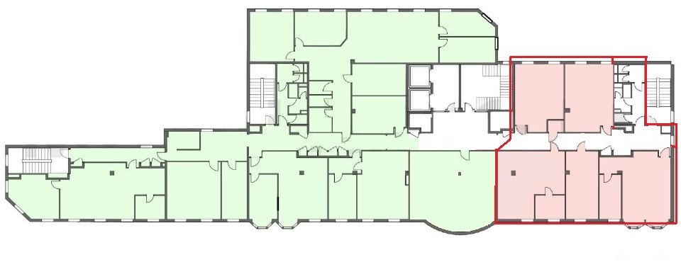
Предлагаем в аренду офис в Мосаларко Плаза 1 класса «A»
Общая площадь - 1 020 кв. м.
Кабинетная планировка.
Вентиляция: приточно-вытяжная.
Кондиционирование: центральное .
Пожарная сигнализация: спринклерная система.
Охрана: круглосуточная охрана здания.
Арендная ставка - 51 240 руб. за кв. м в год, налоги - НДС включен.
Цена за помещение в месяц - 4 355 400 руб.
Готовность - готово к въезду с 01.08.2026г..
Дата обновления: 22 апреля 2026