Аренда офисного помещения
Москва, ЗАО, р-н Крылатское, б-р Осенний, д23
3 056 333 ₽/мес
39 996 ₽ за м²/год
- 917 м²
- Площадь
- 2/14
- Этаж
ID: o96949
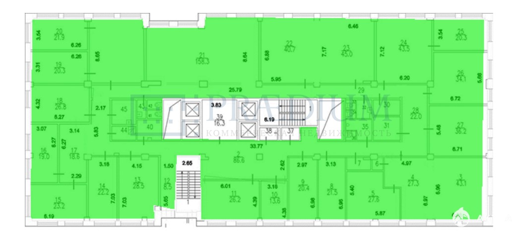
Уважаемый Арендатор, предлагаем Вам арендовать в БЦ "Крылатский" офис 916.9 м² на 2 этаже на выгодных условиях.
Планировка - кабинетная. Приточно-вытяжная вентиляция. Центральное кондиционирование. Интернет, телефония. Охрана. Видеонаблюдение. Система контроля доступа. Лифты: 4, KONE. Подземная парковка. Наземная парковка.
ЗАО Москвы. В 7 минутах от м. Крылатское
Быстро реагируем на обращения, организуем встречу на объекте в удобное для Вас время, направим план помещения и ответим на все возникшие вопросы!
Звоните сейчас и получите лучшие условия на рынке!
Дата обновления: 23 сентября 2025