Аренда офисного помещения
Москва, ЗАО, р-н Крылатское, ул Крылатская, 17
1 121 380 ₽/мес
70 824 ₽ за м²/год
- 190 м²
- Площадь
- 1
- Этаж
Это объявление снято с публикации.
Если это ваше объявление, восстановите его в личном кабинете или подайте новое.
В ином случае, вы можете перейти на главную или поискать другие предложения.
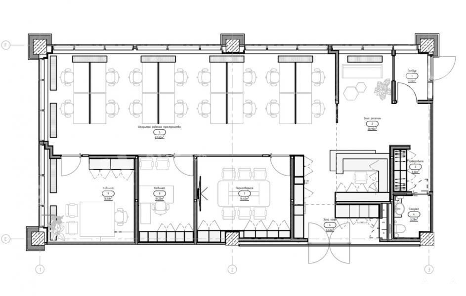
Лот №888829 Предложение от Собственника! Предлагается к аренде офисное помещение на первом этаже бизнес-центра «Крылатские холмы» общей площадью 190 квадратных метров. Помещение имеет качественный современный ремонт и оборудовано отдельной входной группой.
Планировка включает три кабинета, пространство open space и санузел. Отличительными особенностями являются высокие потолки и круглосуточная система контроля доступа. Для обеспечения комфортного микроклимата в офисе функционирует центральная система кондиционирования (чиллер-фанкойл) и приточно-вытяжная вентиляция.
Безопасность обеспечивается автоматической системой пожаротушения. Для арендаторов комплекса доступна дополнительная услуга по аренде машиномест на территории.
Стоимость аренды: 70820 руб/м2/год (1121317 руб в месяц) НДС 22% оплачивается дополнительно. В цену не включено: затраты на электричество, эксплуатационные расходы.
Чтобы получить ПОДРОБНУЮ ПРЕЗЕНТАЦИЮ С ПЛАНИРОВКОЙ И ФОТОГРАФИЯМИ, звоните или отправьте свой email в сообщении на портале. Высылаем в течение 15 минут по запросу!
☎ Конт. лицо: Ирина Владимировна, доб. 204, ЛОТ №888829
Дата обновления: 1 января 2026