Аренда 2х-комнатной квартиры
Москва, ЮАО, р-н Замоскворечье, проезд Жуков, 21Б
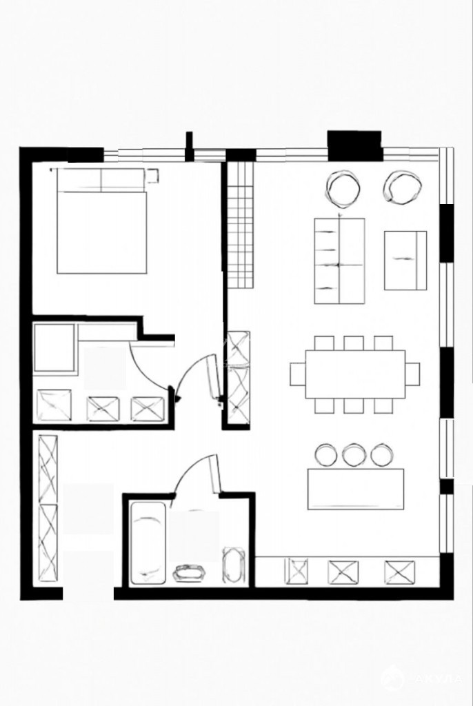
- 71 м²
- Площадь
- 47.00 м²
- Жилая площадь
- 10.00 м²
- Площадь кухни
- 4/10
- Этаж
160 000 ₽/мес
27 043 ₽ за м²/год
ID объявления 12128750
Поделиться
Добавить в избранное
Лот № 74239 Сдаётся в аренду 2-х комнатные аппартаменты с мебелью и техникой в современном ЖК бизнес-класса Level Павелецкая.
Большая кухня-гостиная, спальня, 2 санузла, высокий потолок, кондиционер, теплый пол, панорамные окна во двор. Дизайнерский ремонт с качественной мебелью.
Презентабельное лобби, консьерж, подземный паркинг.
Закрытый двор с ландшафтным дизайном, детские площадки и лаунж-зоны для взрослых.
Развитая инфраструктура района и отличная транспортная доступность.
Дата обновления: 12 октября 2025