Продажа многокомнатной квартиры

Москва, Ленинградский пр-т, 37/6

187 м²
Площадь
37/41
Этаж

174 990 000 ₽

934 776 ₽ за м²

ID объявления 12553749

Поделиться

Добавить в избранное



№168592
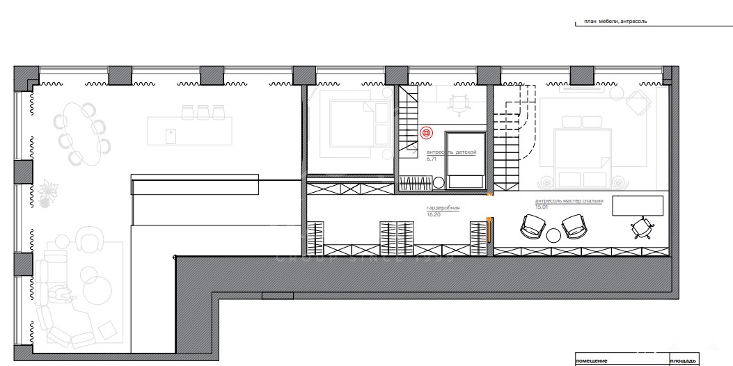
Пентхаус 187.2 м² в современном премиальном комплексе Prime Park.

Возможное планировочное решение: кухня со столовой зоной, гостиная, 3 - 4 спальни с собственными ванными комнатами, зона постирочной.
Возможно расширение площади за счёт постройки антресоли - второго этажа внутри квартиры.

Квартира без отделки, свободной планировки с панорамным остеклением и великолепными видами на Петровский путевой дворец, ВТБ Арену, Останкинскую башню и ЖК "Триумф Палас".

10 панорамных окон от пола до потолка обеспечивают отличную инсоляцию.
Высота потолков - 5.5 метров.



Дата обновления: 27 февраля 2026