Продажа 2х-комнатной квартиры
Москва, ЮАО, р-н Даниловский, ул Тюфелева Роща, 22с2
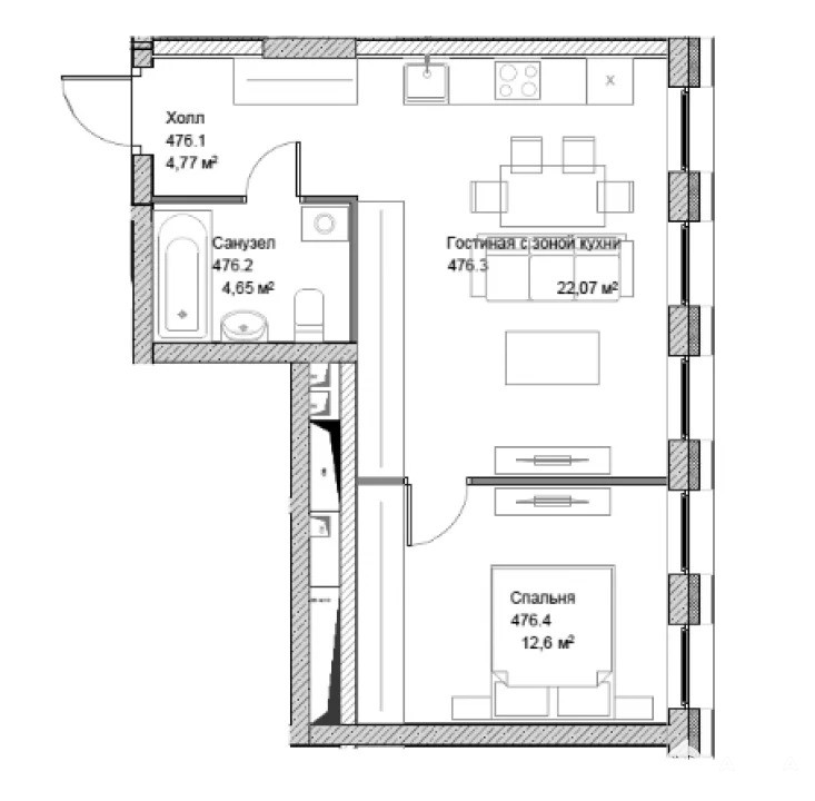
- 44 м²
- Площадь
- 12.6 м²
- Жилая площадь
- 22.0 м²
- Площадь кухни
- 9/16
- Этаж
Это объявление снято с публикации.
Если это ваше объявление, восстановите его в личном кабинете или подайте новое.
В ином случае, вы можете перейти на главную или поискать другие предложения.
Жилой комплекс апартаментов бизнес-класса с дизайнерским ремонтом на набережной Москвы-реки. Дом для рациональных и амбициозных людей с комфортабельным и продуманным пространством.
Отличный Вариант для жизни и инвестиций.
3 корпуса переменной этажности: от 10 до 16 этажей. Проект создан в бюро «Цимайло, Ляшенко и партнеры».
К продаже предлагается апартамент Евро 2 - 44, 02 м2.
Все апартаменты сдаются с дизайнерской отделкой. Отделка представлена в трех стилистических решениях — Minimal, Culture и Nature.
Пощади планировок от студий 20 кв. метров до просторных трехкомнатных апартаментов площадью более 100 кв. метров. Благодаря высоким потолкам и большим панорамным окнам апартаменты наполнены светом и воздухом.
Все апартаменты сдаются с системой «Умный дом», а собственное мобильное приложение позволяет заказать услугу консьержа, настроить взаимодействие с управляющей компанией, проконтролировать коммунальные платежи или разместить заявку на ремонт.
В дизайнерском гранд-лобби с водопадом обустроена зона ожидания с мягкой мебелью и журнальными столиками. Рядом расположены Lounge Bar с пекарней и Speakeasy Bar.
В проекте «Insider» предусмотрены фитнес-студия с инфракрасной сауной, кафе с летней террасой, детский центр, дизайнерская лаунж-зона с лобби-баром и служба ресепшен. Для бизнеса спроектированы 2 коворкинга и пространство деловых встреч. В лобби работают аптека и стоматология. Минимаркет, химчистка и пункт бытовых услуг удовлетворяют большинство повседневных потребностей. Во дворе расположены зоны отдыха и фонтан. Для владельцев автомобилей предусмотрен подземный паркинг с въездом по рампе через систему распознавания номеров. Здесь же находятся келлеры площадью от 1, 4 до 7, 7 кв. метров. Паркинг оборудован настенной системой хранения велосипедов и розетками для электромобилей.
Проект «Insider» расположен на Симоновской набережной в непосредственной близости к воде. Внешняя инфраструктура развита, в пешей доступности детские сады, школы, кафе, магазины, медицинские учреждения и фитнес центр. Метро «Тульская» находится в 15 минутах пешком, а Кремль в 7 км от проекта.
Надежный застройщик и игрок рынка уже 15 лет, в портфеле компании 21 проект.
Сдача дома 2 кв. 2025 год.
Звоните и мы расскажем подробно о всех преимуществах комплекса и поведем онлайн и офлайн просмотр. AFY-345321105
Дата обновления: 23 ноября 2023