Продажа дома

Москва, Москва, 4-я Мякининская улица

1 107 м²
Площадь
3
Этажность

700 000 000 ₽

632 340 ₽ за м²

ID объявления 12135538

Поделиться

Добавить в избранное



№169635
Классическая резиденция площадью 1107 кв.м расположена на просторном участке 66 соток в Мякинино.

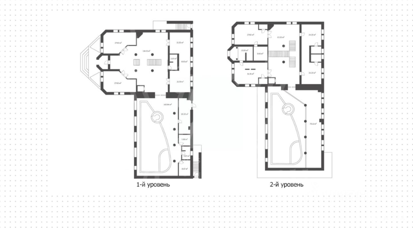
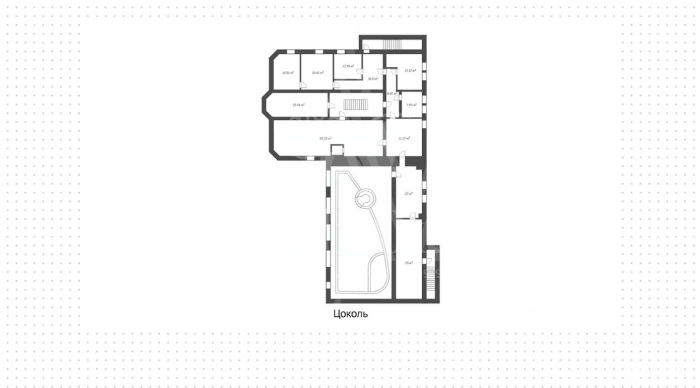
Планировка дома:
Цоколь: холл, домашний кинотеатр, 4 комнаты для персонала, кухня, санузел, хозяйственный блок, технические помещения;
1 этаж: холл, гостиная, кухня, столовая, кабинет, санузел, SPA-зона с бассейном, сауной, хаммам, массажным кабинетом и санузлом;
2 этаж: 4 спальни с гардеробными и санузлами.

В контуре дома расположен гараж на 3 м/м, на территории участка- 2 зимние беседки и 1 летняя беседки. На огороженном участке растут лесные деревья и кустарники, вымощены дорожки и оборудовано уличное освещение.

Дата обновления: 14 октября 2025