Продажа дома

Москва, деревня Лужки, микрорайон Солнечный город-1, 207

335 м²
Площадь
115.00 м²
Жилая площадь
14.00 м²
Площадь кухни
2
Этажность
12 сот
Площадь участка

25 000 000 ₽

74 627 ₽ за м²

ID объявления 12671381

Поделиться

Добавить в избранное

Лот № 74909 О ДОМЕ, УЧАСТКЕ:
- Продаётся 2-этажный дом с гаражом на 2 места, бетонированным подвальным помещением в 15 кв.м., террасой - 35 кв.м., 4 сан. узлами, тёплыми полами, на участке 12 соток с плодоносными деревьями и кустарниками. ПОДХОДИТ ДЛЯ КРУГЛОГОДИЧНОГО ПРОЖИВАНИЯ.
- Дом 2014 года постройки, строился для себя, расположен в элитном, охраняемом микрорайоне Солнечный город-1, в окружении лесных массивов.
- Категория земель: Земли населенных пунктов. ИЖС! МОСКОВСКАЯ ПРОПИСКА!
- Все коммуникации централизованные (вода, канализация, газ магистральный), электричество - 15 кВт.
- Ежемесячный платеж за поселок - 6 000 руб. При постоянном проживании дополнительные расходы: на электричество - 3 000 руб., интернет Ростелеком (оптика, 300 м/с) - 1 000 руб., газ (в зависимости от сезона) - от 4 000 до 8 000 руб. в месяц. Вода не оплачивается. Итого ежемесячные платежи составляют: от 14 000 до 18 000 руб.

ДОКУМЕНТЫ: 1 СОБСТВЕННИК, СВОБОДНАЯ ПРОДАЖА, ПОЛНАЯ СТОИМОСТЬ В ДОГОВОРЕ. ДОМ оформлен в 2014 г. Земля куплена в 2011 г.

ПОДРОБНЕЕ о доме, участке:
- 3 входа в дом (из гаража, со стороны улицы в прихожую, со стороны участка на кухню);
- Фундамент 150+, залиты сваи на 200;
- Утеплитель Руквол акустик 20 см;
- Под потолками плиты железобетонные, между вторым этажом и чердаком перекрытия деревянные;
- Перегородки от 10 до 30 см, звукоизоляция отличная;
- Трехкамерные стеклопакеты премиум, окна выходят на все стороны;
- Тёплый пол - водяной. В морозы расход газа до 1000 кбм.;
- В бойлерной: котёл Бакси на 40 кВт, бойлер Бакси на 200 литров воды, система очистки воды;
- Потолки 3 метра, везде натяжные;
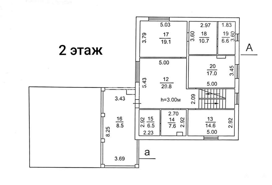
- 6 жилых комнат: * 4 из них – изолированные (2 на 1-ом этаже: кабинет 17 кв.м. и спальня 14 кв.м, 2 на втором этаже: 15 кв.м. и 19 кв.м. со своей гардеробной – 11 кв.м. и своим сан.узлом – 7 кв.м.); * 2 – проходные (гостиная-столовая – 50 кв.м., комната 30 кв.м. с выходом на террасу в 34 кв.м.);
- 4 санузла (1 в бойлерной, 1 на 1-ом этаже, 2 на 2-ом этаже), в одном санузле предусмотрено помещение под Сауну;
- Кладовая на кухне, кладовая под лестницей;
- На участке плодовые деревья: яблони, груши, сливы, малина, жимолость, черная и красная смородина, крыжовник, ежевика, клубника, голубика, розы;
- Есть теплица 8 на 3, колодец на 10 колец (вода хорошего качества), дренаж, искусственный прудик.

ИНФРАСТРУКТУРА:
- На территории находится загородный клуб Лачи, где всегда можно провести досуг, а также ресторанный банный комплекс, СПА, магазины, аптека, шиномонтаж, мойка, пункты выдачи OZON и WB, остановка общественного транспорта;
- В 50 м. от поселка протекает река Пахра с зоной отдыха;
- Вся инфраструктура рядом, в поселке Шишкин лес: школы, детские сады, аптеки, поликлиника, магазины;
- Общественный транспорт ходит до метро Теплый Стан, Ольховая.

Дата обновления: 7 апреля 2026

Дом/Коттедж/Таунхаус/Дуплекс под ИЖС От собственника