Продажа торгового здания

189 000 000 ₽

270 000 ₽ за м²

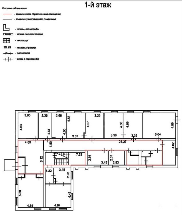
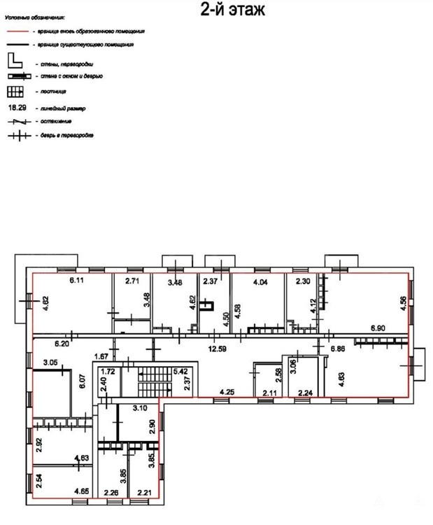
700 м²
Площадь
1/2
Этаж

Поделиться

Добавить в избранное

Продажа здания 700 м2 м. Варшавская в ЮАО
Описание : В продаже отдельно стоящее двухэтажное здание 1950 года постройки. Материал стен шлакобетон. Подвал небольшой 60-70 м2. В основном полезная площадь, эффективная коридорное-кабинетная планировка, окна по периметру. Состояние гот вое - офистная отделка.
Расположение : 7 минут до метро Нахимовский проспект. Нагатинской район.
Коммуникации : все центральные. Электричество
38 кВт.
Паковка : Бесплатная парковка у самого входа места всегда свободны.
Земельный участок: 1199 кв. м в аренде до 2030 года. Огорожен. ВРИ: эксплуатация административного здания.
Арендаторы : не сдается.
Условия : продажа от двух юр. лиц. НДС 5%. Объект №3100-984346.

Дата обновления: 11 февраля 2026

Здание Торгово-офисное