Продажа торговой площади
Москва, ВАО, р-н Перово, ул 1-я Владимирская, 43
78 500 000 ₽
285 455 ₽ за м²
- 275 м²
- Площадь
- 1
- Этаж
Торговое помещение на хорошем трафике у метро Перово, по адресу: ул 1-я Владимирская, д.43.
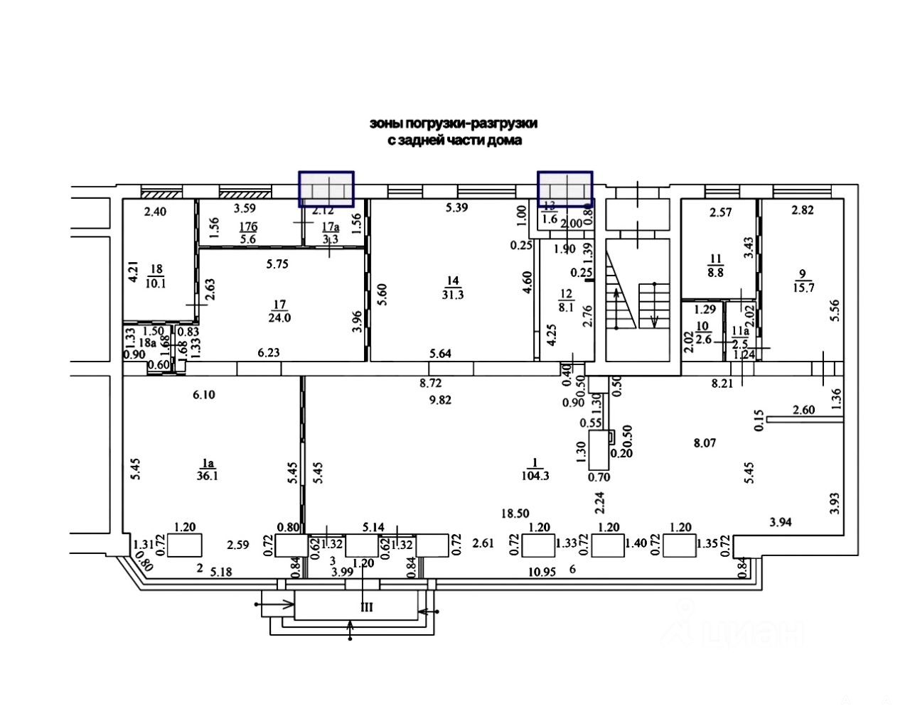
Общая площадь: 275 м² (1 этаж). Открытая планировка, три отдельных входа с фасада и зона разгрузки с задней части, высота потолка 3, 15 м, витринные окна по фасаду. Электрическая мощность 30 кВт. Парковка перед фасадом. Помещение располагается в центре жилого массива. Интенсивный автомобильный и пешеходный трафик вдоль помещения.
Арендаторы продукты, договор 11 мес. Действующая алкогольная лицензия.
Стоимость продажи - 78 500 000 рублей. Звоните!
Номер объекта: #2/568129/10777
Дата обновления: 5 февраля 2026