Продажа торговой площади

Москва, Киевского вокзала площадь улица, 2 Б

200 000 000 ₽

273 225 ₽ за м²

732 м²
Площадь
4
Этажность

Поделиться

Добавить в избранное

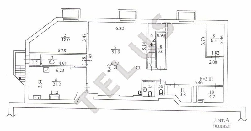
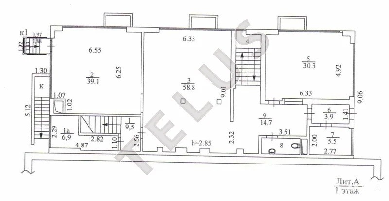
Отдельно стоящее здание площадью 732 м2, состоящее из четырех уровней - три этажа и цокольный этаж. Расположено в пяти минутах пешком от м. Киевская, в престижном Западном округе (район Дорогомилово). Коммуникации центральные, электрическая мощность 85 кВт, приточно-вытяжная вентиляция, санузлы на каждом этаже. Перекрытия ж/б, год завершения строительства 2008г. Земельный участок под зданием 220 м2 в долгосрочной аренде до 2060г. В настоящий момент здание сдано в аренду (долгосрочный договор). Объект №. AFY-800826285

Дата обновления: 24 января 2026