Продажа торговой площади
Москва, ЮАО, р-н Бирюлево Восточное, ул 6-я Радиальная, 7/1к1
15 521 000 ₽
208 616 ₽ за м²
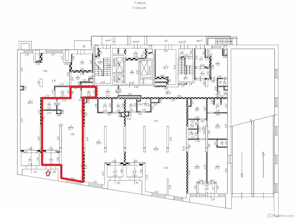
- 74 м²
- Площадь
- 1
- Этаж
.
Нежилое помещение, 74, 4 м | ЮАО, 6-я Радиальная ул., д. 7/1, корп. 1, этаж 1, пом. 3Н | Метро: Царицыно (пешком 35 мин., транспортом 34 мин., расстояние 1.68 км)
Характеристики:
Функциональное назначение: Свободное
Тип входа: Отдельный AFY-800826113
Дата обновления: 18 ноября 2025