Продажа помещения свободного назначения
Москва, ЮВАО, р-н Рязанский, ул Коновалова, 14
200 000 000 ₽
262 813 ₽ за м²
- 761 м²
- Площадь
- 1/2
- Этаж
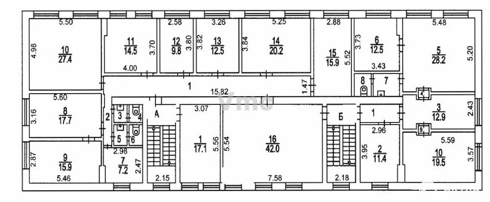
Арт. 78562365. . Административное здание расположено в транспортной доступности от метро, удобное транспортное сообщение. Земельный участок - 1082 м2. Стены - кирпичные, потолки - ж/б перекрытия. Огороженная и охраняемая территория. Система общеобменной вентиляции и кондиционирования. Описание помещения: Земельный участок 4080кв (долгосрочная аренда до 2067г.) Стены кирпичные, перекрытия железобетонные плиты. Электрическая мощность 50кВТ. Отдельный вход. Этаж: 1. Планировка: кабинетная ( коридорная ). Типовой ремонт. Тип налогообложения: С НДС. Наземный паркинг на 30 м/м. Налоговая: 21. Лифты: Нет. Вентиляция: Приточно-вытяжная. Кондиционирование: Центральное. Безопасность: Круглосуточный доступ, Контроль доступа, Видеонаблюдение. Провайдеры: Коммерческие. Парковка: Многоуровневая.
Дата обновления: 7 марта 2026