Продажа помещения свободного назначения

12 082 915 ₽

489 187 ₽ за м²

25 м²
Площадь
5/6
Этаж

Поделиться

Добавить в избранное

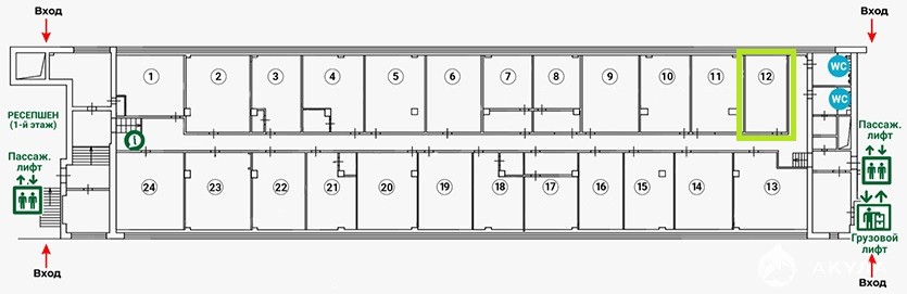
Номер лота: 13158 Россия, Москва, Большая Новодмитровская улица, 23с2 Шоссе: Третье транспортное кольцо Общая площадь: 24.70 м.кв. Офис с душой в центре Савёловского района Местоположение: Современное бизнес-пространство в 2 минутах пешком от метро Дмитровская и 7 минутах от Савеловской. Описание:Продаётся уютное и функциональное офисное помещение общей площадью 24, 7 кв.м. на пятом этаже бизнес-центра класса B+.Недавно завершён полный ремонт всего этажа — свежий, лёгкий дизайн, качественные материалы, продуманная инфраструктура.Продается помещение в современном деловом центре с развитой внутренней экосистемой.✨ Удобства и сервисы:Переговорная — доступна без дополнительной оплатыВозможности для нетворкинга — зоны общего пользования, деловые событияБесплатный кофе для сотрудников и гостейЕжедневная уборка помещенийВысокоскоростной интернет с стабильным подключениемВыделенный IP-адрес — для безопасного и надёжного соединения Архитектура и инженерия:Высота потолков — 4 метраОгромное остекление — максимальное естественное освещениеДва пассажирских лифта, один грузовой лифтЧетыре входа в здание, три ресепшен — удобный доступ и встреча гостейВозможен формат light industrial — подходит под креативные и технические проекты Коммуникации: В каждом помещении — ГВС, ХВС и канализация Текущее использование: Помещение занято арендатором, действует договор. Окупаемость инвестиций — 7, 5 лет ❄️ Климат-контроль: Установлены кондиционер и вентиляция — комфорт в любое время года. Идеальное решение для инвестора или бизнеса, ценящего качество, функциональность и готовую инфраструктуру. Парковка: Возможность оформить абонемент на закрытую наземную парковку — удобно для сотрудников и клиентов. Этаж 5 из 6 Кол-во этажей: 6 Свободная продажа. ТИП КОММЕРЧЕСКОЙ НЕДВИЖИМОСТИ: ПОМЕЩЕНИЯ СВОБОДНОГО НАЗНАЧЕНИЯ ТИП ДОГОВОРА: продажа объекта Готовый бизнес, доходность 1620000. Месячная арендная плата, доходность 135000. Материал дома: Кирпич Окна: выходят на улицу, Стеклопакеты Косметический ремонт

Дата обновления: 25 февраля 2026