Продажа помещения свободного назначения

Россия, Москва, г Москва, Старопименовский пер, 8

74 900 000 ₽

180 049 ₽ за м²

416 м²
Площадь
u0426u043eu043au043eu043bu044cu043du044bu0439
Этаж

Поделиться

Добавить в избранное

Продаётся уникальное помещение в стиле Loft в центре Москвы.
Локация: Всего 100 метров до Тверской улицы. Премиальное расположение в самом сердце столицы.
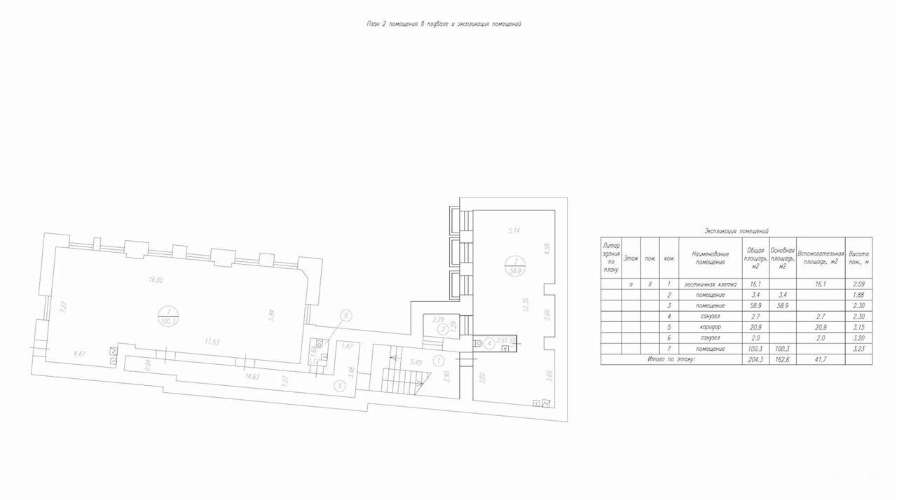
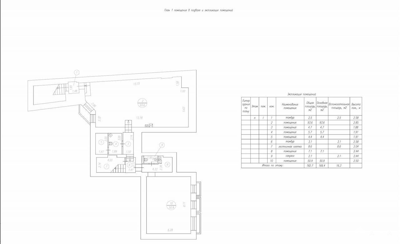
Общая площадь: 416 м². (БТИ 323, 5).Объект состоит из 4 помещений на цокольном этаже:

Помещение 1 с отдельным входом — 124 м² — 2 окона.
Помещение 2 вход через подъезд —или через первое помещение 70 м² — 3 окна.
Помещение 3 с отдельным входом с улицы — 99 м² — 6 окна.
Помещение 4 с отдельным входом с улицы — 123 м² — 8 окон.

Основные характеристики:
Стены — восстановленный исторический царский кирпич.
Потолки — монолитный бетон и сводное перекрытие.
Все коммуникации полностью заменены:
Канализация, Отопление, Горячее и холодное водоснабжение, Электропроводка.

В каждом помещении:
Санузел, Мокрая точка для установки кухни.
Установлены новые стеклопакеты, в помещении 19 окон.

Парковка во дворе под шлагбаумом.
Не входит в перечень торговых, офисных объектов, облагаемых налогом на имущество от кадастровой стоимости.Номер объекта: #2/567897/10777

Дата обновления: 14 января 2026