Продажа помещения свободного назначения

Москва,

444 359 040 ₽

139 560 ₽ за м²

3 184 м²
Площадь
1/2
Этаж

Поделиться

Добавить в избранное

Продажа СОВРЕМЕННОГО промышленного комплекса с_callable_ складом и офисами в элитном корпусе Light Industrial A!
Сдача третей очереди 3 квартал 2026 года
Описание:
ТОП-предложение для бизнеса: производственно-складская площадка + офисные блоки ПОД КЛЮЧ в престижном комплексе.
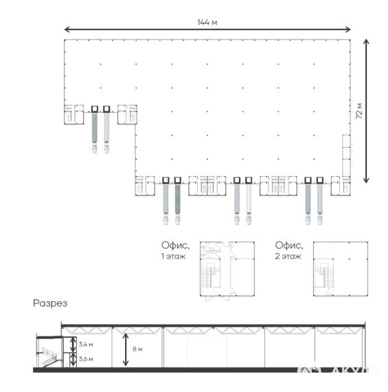
Гибкий формат: площади от 812 м² до 3184 м² целиком. Конфигурации под ваши цели деление по шагу колонн, разделение на склад/производство/офис.
Типы погрузки - доки на уровне 1, 2 м от земли, с докшелтерами и доклевеллерами и/или ворота на уровне земли, кросс-док. Технические характеристики помещения:
Электроснабжение - от 30 Вт/м2
Рабочая высота потолков в промышленном помещении - 8 м
Шаг колонн 12х18 м ёБетонный пол с антипылевым покрытием, нагрузка 5 тонн/кв.м
ОФИСНАЯ ЧАСТЬ:
- Формат: 2-уровневые блоки от 153 м².
- Изолированный вход с улицы для приватности.
- Готовая отделка в стиле Loft, высокие потолки, открытые планировки.
- Система спринклерного пожаротушения.
- Перегородки из трёхслойных сэндвич-панелей звукоизоляция и уют.

Расположение:
Впечатляющая транспортная логистика: 15 минут до СК и 5 минут до деловых районов. Рядом МКАД, ТТК и ТЦ.

Коммуникации:
Дублированная электросеть с выделенными мощностями до 800 кВт.
Центральные водопровод и канализация.
Мощная противопожарная система с автоматическим оповещением.

Парковка:
20+ машиномест для сотрудников и партнёров. Бесплатные и VIP-зоны.

Земельный участок:
1, 2 Га в собственности ! Разрешённый вид: коммерческая недвижимость + расширение. Возможна реконструкция, добавление ангаров или логистических терминалов.

Дополнительно:
Закрытая охраняемая территория 24/7.
Аренда телефонных будок, бронирование площадей.
Консультации по электромонтажу и согласованию проектов.

Схема сделки:
От собственника, без скрытых платежей! Быстрая регистрация: готовые документы по ЭГРН. Возможен Trade-in .

Не упусти шанс!
Звоните уже сейчас [кнопка "Связаться"] или [кнопка "Запросить допы"]!
Организуем VIP-показ в течение 2 часов .

### Дополнительно:
Почему выгодно?
Развитая инфраструктура: инженерные решения под ключ , готов к запуску производства.
Современный корпус Light Industrial A: минимум бюрократии, максимум возможностей.

#promышленнаянедвижимость #склад #офисмосква #производствоХимки #бизнесцентры #арендателефон
Текст адаптирован под высокую релевантность в поисковых системах и лаконичное восприятие с акцентами на преимущества и эксклюзивность! Объект №3100-975155.

Дата обновления: 12 декабря 2025