Продажа помещения свободного назначения

Коньково, 13 мин

Беляево, 21 мин

39 600 000 ₽

722 628 ₽ за м²

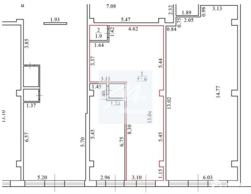
55 м²
Площадь
1/1
Этаж

Поделиться

Добавить в избранное

Продажа готового арендного бизнеса (ГАБ) по адресу: г. Москва, ул. Профсоюзная 152 к1.

- Окупаемость - #11 лет.
- Доходность - 9, 1%/год. Индексация: до 7%.
- МАП (месячный арендный поток) - 300 000 руб/мес.
- ДА: до 13.11.2025
- Арендатор: ресторан быстрого питания «ShaurMeals».
- Общая площадь - 54, 8 м2.
- Электрическая мощность - 20 кВт.
- Высота потолков - 3.4 м.
- Первая линия домов ул. Профсоюзная.
- Первый этаж торгового здания
- Отдельный вход
- Большая витрина.
- Помещение и здание после ремонта, в отличном состоянии.
- Развитое сетевое окружение: Почта России, Wildberries, Ароматный Мир, СДЭК, ДоДо
Пицца, Аптека Фармленд, Пятерочка, Аптека Горздрав, ЧИЖИК.



#ГАБ

Дата обновления: 6 декабря 2025