Продажа помещения свободного назначения

Москва, пр-кт Волгоградский, 80/2, корпус 1

Кузьминки, 2 мин

Волжская, 13 мин

Люблино, 20 мин

54 180 000 ₽

1 921 277 ₽ за м²

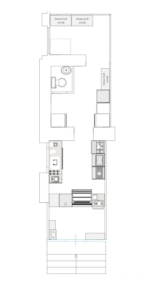
28 м²
Площадь
1/9
Этаж

Поделиться

Добавить в избранное

Арт. 91623244. АРЕНДНЫЙ БИЗНЕС У МЕТРО «КУЗЬМИНКИ» — ПЕКАРНЯ

Помещение расположено непосредственно у выхода из метро «Кузьминки» — одна из самых оживлённых точек района. Сверхинтенсивный пешеходный трафик вдоль фасада обеспечивает стабильный поток клиентов.

В непосредственной близости расположены крупные ТЦ, включая «Мираж», «Снежная Королева».

МАП 430 000 руб.

• 1 этаж жилого дома

• Дом блочный, 1962 г. постройки

• Отдельный вход с фасада

• Высота потолков — 2, 7 м

• Электрическая мощность — 20 кВт

• Центральные коммуникации

• Помещение с отделкой

Арендатор

Действующая пекарня (формат с высокой ежедневной выручкой и стабильным спросом).

Инвестиционная привлекательность

• Топовая локация у метро

• Постоянный пешеходный поток

• Ликвидный формат арендатора

• Сложившееся торговое окружение

Участник AREA - Ассоциации Агентств Элитной Недвижимости

Дата обновления: 10 февраля 2026