Продажа помещения свободного назначения
Москва, ВАО, р-н Богородское, проезд Погонный, 14
24 000 000 ₽
491 804 ₽ за м²
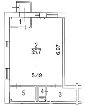
- 49 м²
- Площадь
- 1/10
- Этаж
Продажа ПСН, ГАБ 48.8 м² у м. Белокаменная (ВАО) Расположение:
Москва, ВАО, р-н Богородское, Погонный проезд, 14
1-й этаж 10-этажного жилого дома Транспорт:
Белокаменная 16 мин. пешком
Бульвар Рокоссовского 19 мин. пешком
Преображенская площадь 6 мин. на транспорте Описание помещения:
Площадь: 48.8 м²
Состояние: Помещение с готовым бизнесом
Коммуникации: центральные
Высота потолков: 3 м
Мощность: 10 кВт
Зальная планировка Инфраструктура:
Первая линия
Остановка общественного транспорта Ключевые преимущества:
Угловое расположение на трафике
Готовый бизнес с федеральным арендатором ВИТА ЭКСПРЕСС
Долгосрочный договор аренды на 7 лет с ежегодной индексацией 5% Условия продажи:
• Налогообложение: УСН
• Арендный доход: 150 000 руб./мес. (MАП)
• Тип сделки: Продажа объекта недвижимости по ДКП Готовая инвестиция с гарантированным доходом от федеральной аптечной сети. Помещение с высоким клиентским трафиком в жилом районе. Идеально для пассивных инвестиций. Звоните для организации просмотра и уточнения деталей! Объект №3100-984446.
Дата обновления: 30 января 2026