Продажа помещения свободного назначения

Москва, наб Шелепихинская, 34, корпус 2

Шелепиха, 15 мин

Фили, 13 мин

183 000 000 ₽

335 596 ₽ за м²

545 м²
Площадь
1/37
Этаж

Поделиться

Добавить в избранное

Арт. 88670378. Продается отличное помещение свободного назначения. Удобная пешая и транспортная доступность.

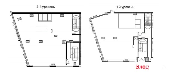
Два блока, расположены на первом и втором этажах.

Витринные окна. Парковка. Погрузочно-разгрузочная зона. Высота потолков 4, 3 метра.

Участник AREA - Ассоциации Агентств Элитной Недвижимости.

Дата обновления: 17 октября 2025