Продажа помещения свободного назначения

Бибирево, 8 мин

Алтуфьево, 9 мин

Отрадное, 21 мин

13 200 000 ₽

586 667 ₽ за м²

23 м²
Площадь
1/12
Этаж

Поделиться

Добавить в избранное

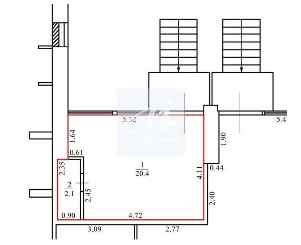
Продажа готового арендного бизнеса (ГАБ) по адресу: Москва, р-н Бибирево, Мурановская д.7.

- Окупаемость - #11 лет.
- Доходность - 9, 1 %/год.
- МАП (месячный арендный поток) 1 год – 100 000 руб./мес.
- Арендатор: пивной магазин «СВЕЖО И ТОЧКА».
- ДА на 11 месяцев, с автоматической пролонгацией. Индексацией - 5%.
- Общая площадь -22, 5 м2.
- Электрическая мощность - 10 кВт.
- Высота потолков - 3 м.
- Витринное окно.
- Отдельные коммуникации.
- Отдельный вход с первой линии ул. Мурановская.
- Торговое окружение: КиБ, Аптека, Пятерочка, ВкусВилл.

#ГАБ

Дата обновления: 6 декабря 2025