Продажа помещения свободного назначения

54 500 000 ₽

182 886 ₽ за м²

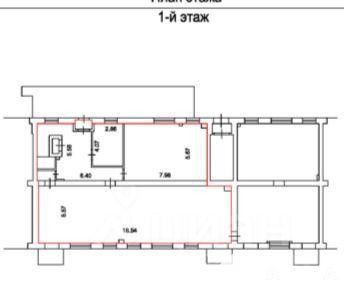
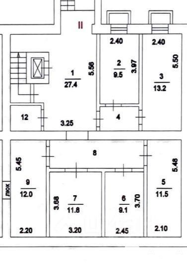
298 м²
Площадь
1/5
Этаж

Поделиться

Добавить в избранное

Михаил. м. Филевский парк, ул. Минская д. 22, от метро 3 мин. пешком, продается помещение площадью 298 кв.м. 1-й этаж - 150 кв.м. и подв. - 148 кв.м. 3 отд. входа. 1 этаж площадь сдана в аренду под Ozon, стоматология. Подвал под " Квест ". МАП 560000 руб.
Продажа в собственность, цена 54500000 руб. АГЕНТАМ ПРОСЬБА НЕ ЗВОНИТЬ.

Дата обновления: 12 декабря 2025