Продажа помещения свободного назначения
Москва, ЗАО, р-н Донской, пр-кт Ленинский, 158
350 000 000 ₽
140 000 ₽ за м²
- 2 500 м²
- Площадь
- 24
- Этажность
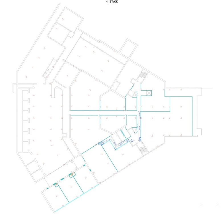
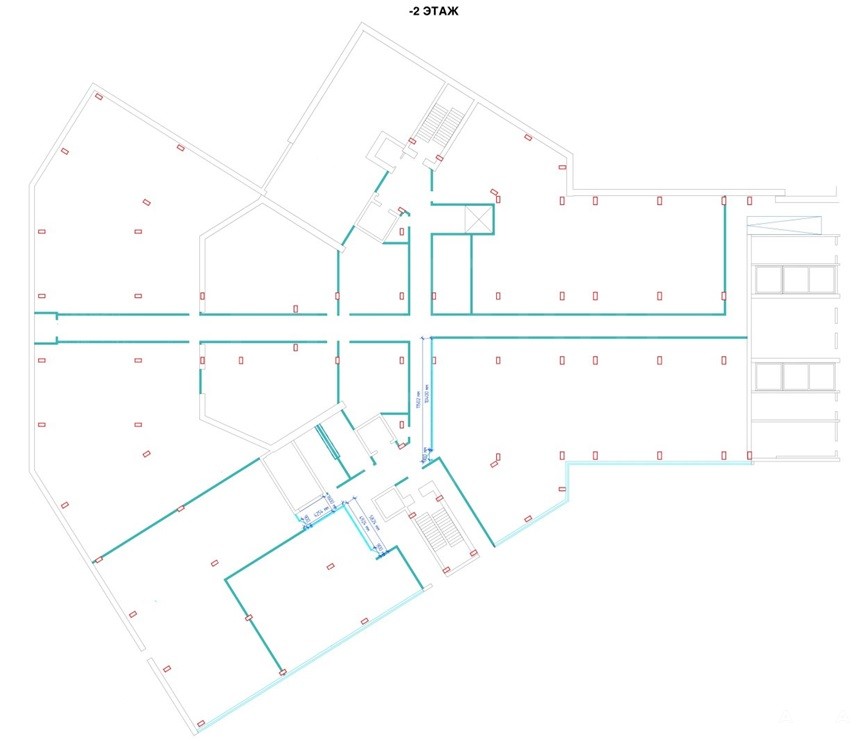
ПРОДАЖА ПСН 2500 м² под производство/склад. ЮЗАО, у м. Тропарёво. Ключевые характеристики: Площадь: 2 500 кв. м Назначение: Помещение свободного назначения (ПСН) под производство, склад, сервис. Этаж: -1 и -2 идеально для логистики. Электромощность: 300 кВт с возможностью увеличения. Локация: ЮЗАО, р-н Тропарёво. Статус: Прямая продажа от собственника. Описание и ключевые преимущества: Продается уникальное производственно-складское помещение большой площади с высокой подведенной мощностью и готовой логистикой. Главное для производства мощность и логистика: Энергомощность 300 кВт достаточно для работы современного цеха, производства, мастерских, серверной. Мощность можно увеличить по запросу. Идеальная логистика с уровня земли : Цокольный этаж (этаж -1) обеспечивает прямой, беспрепятственный въезд для грузового транспорта, удобную погрузку-разгрузку 24/7 без ограничений по времени. Большой единый объем: 2500 кв. м без колонн или с минимальным их количеством (уточняется по плану) позволяет разместить протяженные технологические линии или организовать эффективное складское хранение. Выгода локации и инфраструктуры: В шаге от метро: Крайне удобно для сотрудников, что является большим плюсом при найме персонала для вашего производства. Развитый район с высокой плотностью населения: Обеспечивает доступ к трудовым ресурсам и потенциальным клиентам для show-room или сервисного центра. Все центральные коммуникации подведены и готовы к использованию. Объект №3100-984723.
Дата обновления: 5 февраля 2026