Продажа помещения свободного назначения

Москва, Карманицкий пер, 9

130 000 000 ₽

4 924 243 ₽ за м²

26 м²
Площадь
1/8
Этаж

Поделиться

Добавить в избранное

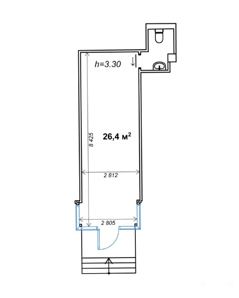
Арт. 91563139. Выгодное инвестиционное предложение: готовый бизнес с гарантированным доходом в одной из самых проходных локаций Москвы. Помещение площадью 26, 4 м² с отдельным входом всего в 20 метрах от метро «Смоленская» арендовано стабильным оператором «Табак».

Ключевые характеристики:

Площадь: 26, 4 м²



Тип здания: нежилое



Отдельный вход



Высота потолков: 3, 3 м



Расположение: 20 метров от метро «Смоленская»



Коммерческие условия:

Арендатор: «Табак»



Срок договора аренды: 5 лет (до 13.11.2030 г.)



Арендная ставка: 670 000 ₽/месяц



Индексация: согласно ИПЦ



Стабильный денежный поток и долгосрочная аренда

Это предложение — возможность приобрести компактный, но высокодоходный актив с предсказуемой доходностью и минимальными административными затратами. Помещение уже приносит стабильный ежемесячный доход, а расположение у метро обеспечивает ликвидность и потенциал роста стоимости.

Идеально для частных инвесторов, желающих добавить в портфель надёжный объект с готовым cash flow в центре Москвы.

Участник AREA - Ассоциации Агентств Элитной Недвижимости.



Дата обновления: 8 февраля 2026