Продажа помещения свободного назначения

Москва, Гольяновская улица, 7к1

24 200 000 ₽

129 412 ₽ за м²

187 м²
Площадь
-1/5
Этаж

Поделиться

Добавить в избранное

Продажа готового арендного бизнеса (ГАБ) по адресу: Москва, р-н Басманный, Гольяновская ул., 7к1.

- Окупаемость - #8, 1 лет.
- Доходность - 12, 4 %/год
- МАП (месячный арендный поток) - 250 000 руб./мес. Ежегодная индексация арендной ставки не менее 7%.
- Арендатор: Офис (медицинская техника и оборудование).
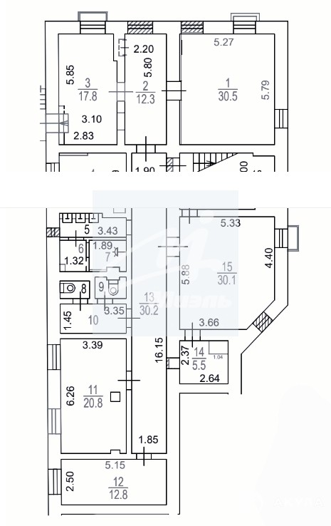
- Общая площадь - 187 м2.
- Электрическая мощность - 20 кВт.
- Высота потолков - 2, 5 м.
- Цокольный этаж. Два отдельных входа.
- Бесплатная парковка.
- Водоснабжение, теплоснабжение, канализация.
- Коммунальные платежи компенсируются арендатором в полном объеме.
- Ремонт с отделкой.
- Дизайн вывесок официально согласован.
- Автобусная остановка в 1 минуте ходьбы.
- Метро “Электрозаводская” в 12 минутах ходьбы.
- Метро “Семеновская” в 15 минутах ходьбы.
- Метро “Лефортово” в 18 минутах ходьбы.
- В радиусе 10 минут пешком проживает 20 337 человек.
#ГАБ

Дата обновления: 6 декабря 2025