Продажа помещения свободного назначения

1 200 000 000 ₽

571 429 ₽ за м²

2 100 м²
Площадь
5
Этажность

Поделиться

Добавить в избранное



№201676
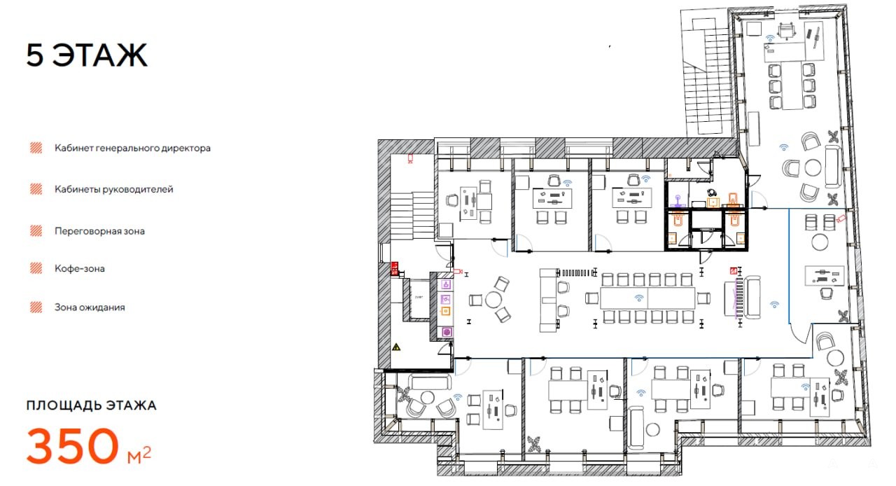
Предлагается к продаже особняк с действующим арендатором. Заключен долгосрочный договор аренды. ГАП 165 млн. - Пятиэтажное здание с цоколем. - 100 м² приватная терраса с видом на центр Москвы. - Панорамное остекление, дизайнерская отделка. - Лобби, event‑зона, переговорные, open space, кабинеты руководства. - Кофе‑зоны, кухни, медиа‑пространство, Skype‑будки, ресепшен, современная мебель. - Высота потолков 3, 4 м. - Мощность 220 кВт. - Современные системы вентиляции и кондиционирования, противопожарная безопасность.

Дата обновления: 26 февраля 2026