Продажа помещения свободного назначения

Москва, Дмитровское ш, 64, корпус 1

255 000 000 ₽

712 291 ₽ за м²

358 м²
Площадь
1/12
Этаж

Поделиться

Добавить в избранное

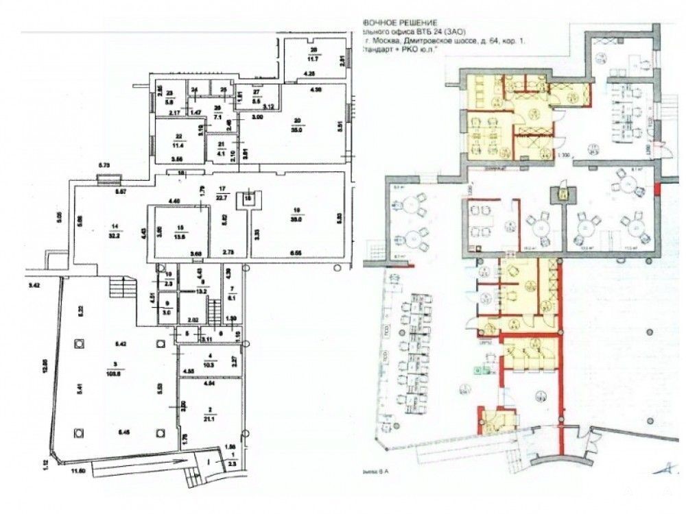
Арт. 90902224. Банк "ВТБ". ДА от 01.01.16 до 01.03.2026 г. МАП 2 145 619 рублей. на 1-м этаже встроенно-пристроенное. Густонаселенный жилой массив. Перед фасадом расположена большая парковка с удобным заездом с Дмитровского шоссе и Дубнинской улицы. Высокий рекламный потенциал. Два отдельных входа: с первой линии и со двора. Сплошное витринное остекление по фасаду. Зальная, свободная планировка. Общая площадь - 357, 7 м2. Высота потолков - 3, 6 м. В помещении выполнен ремонт. Все коммуникации центральные. Электричество - 78, 6 кВт.

Дата обновления: 15 января 2026