Продажа помещения свободного назначения

Москва, б-р Покровский, 16, литера5

262 000 000 ₽

500 000 ₽ за м²

524 м²
Площадь
2
Этажность

Поделиться

Добавить в избранное

Арт. 89160935. Продажа ГАБ. Особняк 524м2. первая линия Покровского б-ра. Не является памятником!

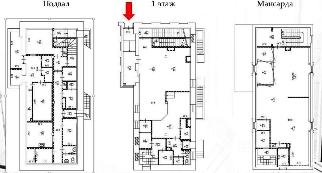
Подвал, первый этаж и мансарда.

Год ввода в эксплуатацию по завершении реконструкции: 2023 (есть все разрешения).

Земельный участок (аренда): 336 кв.м.

Вид разрешенного использования: участки административно-делового вида; проектирование и воссоздание в рамках регенерации офисного здания.

Электрическая мощность 120 кВт.

Высота потолков: 1-й этаж: До плиты 3, 35 метра, до перекрытия 2, 7 метра.

Мансарда: До плиты 3 метра, до перекрытия 2, 7 метра.

Подвал: До плиты 2, 7 метра, до перекрытия 2, 3 метра.

Ж/Б перекрытия.

Два отдельных входа.

ИФНС №9. УСНО.

Текущий арендатор по долгосрочному договору банковская структура ПСБ МАП 1 750 000, индексация 7%, окупаемость 9 лет!

Доход от аренды через 10 лет 290 млн.!

Подходит под: медцентр, гостиницу, банк, учебные цели.

Евгений Р.







Дата обновления: 19 марта 2026