Продажа помещения свободного назначения
Москва, п Сосенское, Новомосковский АО, округ Новомосковский, п Коммунарка, ул Александры Монаховой, 87к6
Бунинская аллея, 25 мин
Улица Горчакова, 36 мин
21 000 000 ₽
501 194 ₽ за м²
- 42 м²
- Площадь
- 1/17
- Этаж
Продажа торгового помещения по адресу: г Москва, р-н Коммунарка, поселок Коммунарка, ул Александры Монаховой, д 87 к 6
Преимущества:
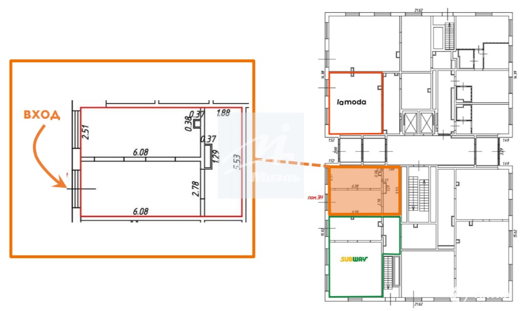
- Общая площадь - 41, 9 м2.
- В радиусе 300 м:1 378 кв-р
- Всего в ЖК: более 5 000 кв-р
- Кабинетная планировка.
- Витринное окно;
- Вывеска;
- Санузел;
- Отдельный вход;
- Сквозной пешеходный бульвар от края до края ЖК, с лавочками, озеленением, отдельной велодорожкой и прогулочной зоной;
- Станция метро «Потапово» - 270 м;
- Дом заселен.
#ТП
Дата обновления: 6 декабря 2025